WHITE & WHITE
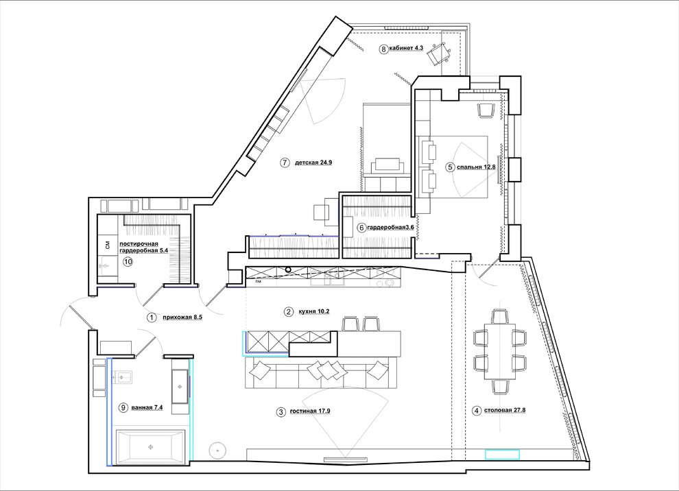
Белый свет, белый цвет, белый воздух в белом пространстве. Магический эффект зеркал и глянцевых поверхностей. Миллион отражений, расширяющих и трансформирующих. Неровные, ломаные плоскости потолков и стен. В первые мгновения сложно оценить истинные размеры квартиры. Кажущийся избыток белого, вполне компенсируется присутствием натуральных эко-материалов: это и деревянные полы, переходящие в стены, это и округлые речные камни. Источники света биотектоничны, подобны живым существам и тоже добавляют тепла помещению в целом. Интересный материал использован на основной стене гостиной и стене кухонной зоны. Это — керамогранит с природным рисунком и глубоким рельефом. Белые ветви деревьев под стеклом и металлом в гостиной, стена-водопад, пламя эко-камина… Холл, кухня и зал — это единое студийное пространство. Белое на белом снова полно сюрпризов: двери в спальню и в детскую словно замаскированные секретные ходы в потайные комнаты. Детская решена в белом с нежно-травяным зеленым. Орнамент обоев повторяет декоративная панель двухэтажной кровати. Это большое, приспособленное для игр, учебы и отдыха пространство. Спальня хозяев невелика и уютна. Гипсовое панно на стене у изголовья кровати походит на спокойные волны реки сна. Яркие, цветные зигзаги покрывала и подушек обеспечивают горячий цветовой центр, логичную точку сборки интерьера спальной комнаты. Одна из стен ванной выполнена из речного камня. Другая стена, в привычном понимании, отсутствует. Это — матовое стекло и водопад, концептуально соединяющий гостиную с ванной. Природный камень, полупрозрачное стекло, подобное туману, и ниспадающие струи воды, превращают небольшую ванную в уютную спа-зону. Яркий, «горячий» текстиль и декор во всей квартире, составляют тот самый необходимый акцент, оживляющий и цепляющий взгляд.
19 фотографий



















