Wellhouse
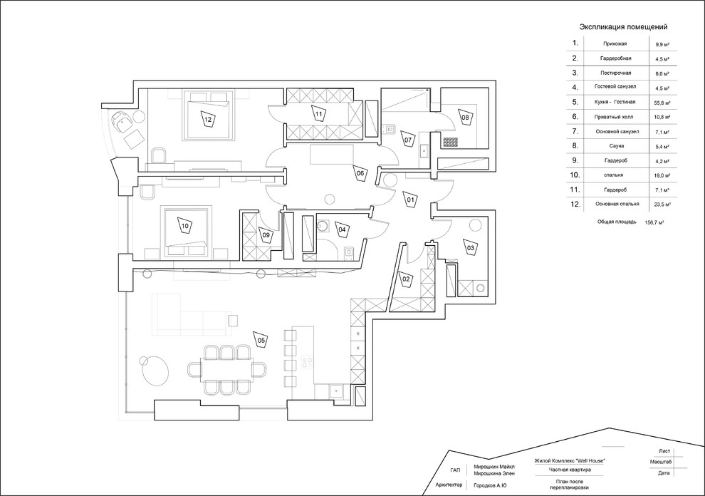
Интерьер этой квартиры мы выстроили на контрасте двух материалов: тёплого дерева и холодного стекла. Динамичная планировка позволила уйти от тупикового восприятия холлов и впустить дневной свет из гостиной в прихожую, а геометрические объёмы панелей и декоративных разбивок сделали интерьер уникальным. . Геометричная композиция из деревянных панелей является связующим звеном между прихожей и гостиной, а также перекликается с отделкой кухни, за счёт чего образ гостиной выглядит целостно. Эта ломаная композиция добавляет интерьеру динамики. На кухне колонны выполнены из дерева, а фасады рабочей зоны –белый матовый мдф. Мы долго искали идеальный камень на фартук, в итоге остановились на бело-сером волокас е, но на столешницу мрамор класть не стали. Дизайнеры любят этот приём, но мы выступаем не только за эстетику, но и за практичность. Проведя множество экспериментов с мрамором, химическими обработками и агрессивными продуктами типа кофе и вина, пришли к выводу, что светлый мрамор на столешнице может лежать только на кухне, на которой никто не готовит!!! Поэтому подобрали кориан, подходящий по оттенку белой основе мрамора . Основа гостиной – белая, таким образом расставляются правильные акценты на архитектурном решении объёма . В геометрию ломаной стены вписаны также входные блоки в гостевой санузел и приватную зону. Это наш любимый приём: визуально замаскировать расположение спален, скрыть от посторонних глаз приватные помещения. . В основной спальне мы ввели в отделку шоколадный орех и эко-кожу. На контрасте с серым стеклом эти материалы выглядят особенно тепло и благородно. В эркере мы расположили зону для чтения, благодаря портьерам можно закрыться и уединиться в укромном уголке у окна с книгой или чашечкой кофе. . В гостевой спальне кожаная кровать на фоне декоративных бетонных панелей, а на противоположной стене серое стекло с геометричной разбивкой . Между прихожей и спальнями есть транзитное помещение, в котором решено было устроить мини-тренажёрный зал: так здесь появились зеркала, акустика и декоративные панели из дерева в качестве декоративной отделки . Основной санузел отделан серым мрамором, в его кружево все влюбились с первого взгляда, хотя изначально думали над Nero Marquina. . В плоскость камня вклеили стекло с подсветкой, выполненное по нашим чертежам, а за графитовым стеклом скрыта сауна, которая очень удачно вписалась в планировку .
21 фотография






















