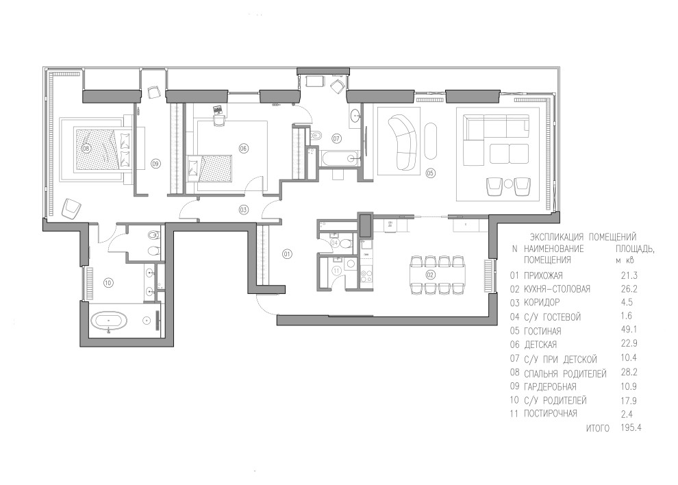
WabiSabi in Color — квартира 200 м² в ЖК Снегири
WabiSabi in Color — проект об объединении цветовых нюансов и минимализма. . . Интерьер для яркой творческой семьи, для которых внутреннее важнее внешнего. Поэтому интерьер выступает "дружелюбным" фоном, в котором главными акцентами являются сами люди, которые здесь живут. . . В этом проекте использовалось множество натуральных материалов — дерево, камень разных фактур — от гладкого до рустованного. Особое внимание уделено подбору искусства — скульптуры Симона Аллена, Лайонела Смита и живопись современных художников поддерживают настроение дома.
Год реализации: 2020
Стоимость проектирования: 508 750 000 ₽
г. Москва
19 фотографий




















