logo
ФотоЭкспертыСтатьи
Профиль пользователя

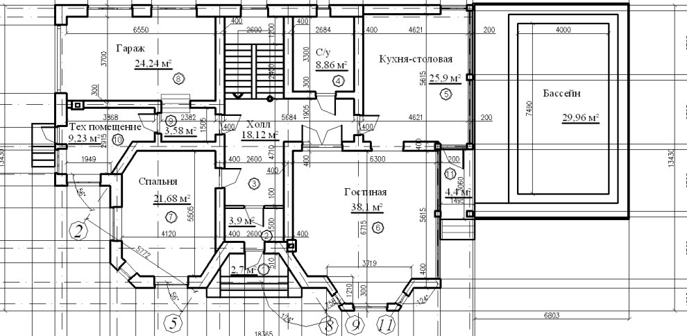
Второй свет. Проект дома в Ленинградской области.

Год реализации: 2016
Стоимость проектирования: 5 250 000 ₽
photo

1 фотография

Второй свет. Проект дома в Ленинградской области.
Второй свет. Проект дома в Ленинградской области.
Фоновое изображение профиля Архитектурно-строительная компания "A&C group"
Фото профиля Архитектурно-строительная компания "A&C group"

Архитектурно-строительная компания "A&C group"webuser_547667462

0

0 отзывов

Проектирование и строительство

Контакты

г. Санкт-Петербург, Домостроительная ул., 4.
Флатика
О насМы в прессеFAQКонтакты
ВкДзенTelegramTelegram Pro
Pro
Instagram

Продукт компании Meta, признанной экстремистской организацией, деятельность которой запрещена в РФ

Связаться с поддержкой
Пользовательское соглашениеПолитика в отношении обработки персональных данных