logo

"Воздушное пространство"

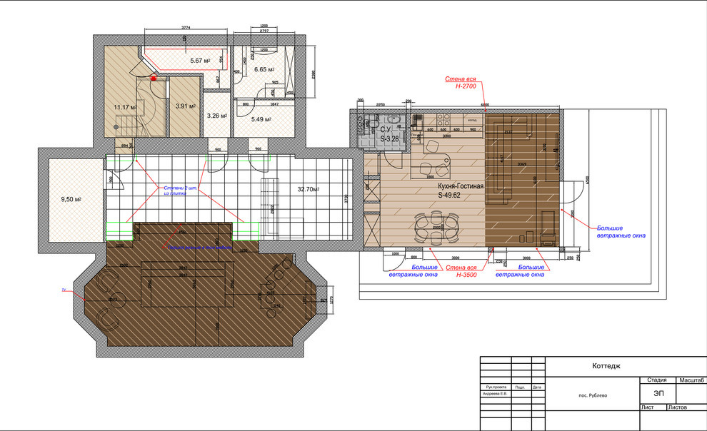
Небольшая пристройка к загородному дому. . Первый этаж -это гостиная-кухня, сауна и душевая .Бильярдная комната расположена на цокольном этаже. Общая пл. 120м2

Год реализации: 2015
photo

10 фотографий

"Воздушное пространство"
"Воздушное пространство"
"Воздушное пространство"
"Воздушное пространство"
"Воздушное пространство"
"Воздушное пространство"
"Воздушное пространство"
"Воздушное пространство"
"Воздушное пространство"
"Воздушное пространство"
"Воздушное пространство"
"Воздушное пространство"
"Воздушное пространство"
"Воздушное пространство"
"Воздушное пространство"
"Воздушное пространство"
"Воздушное пространство"
"Воздушное пространство"
"Воздушное пространство"
"Воздушное пространство"
Фоновое изображение профиля Екатерина
Фото профиля Екатерина

Екатерина

Дизайнеры интерьера

Контакты