Vitro country Загородная жизнь
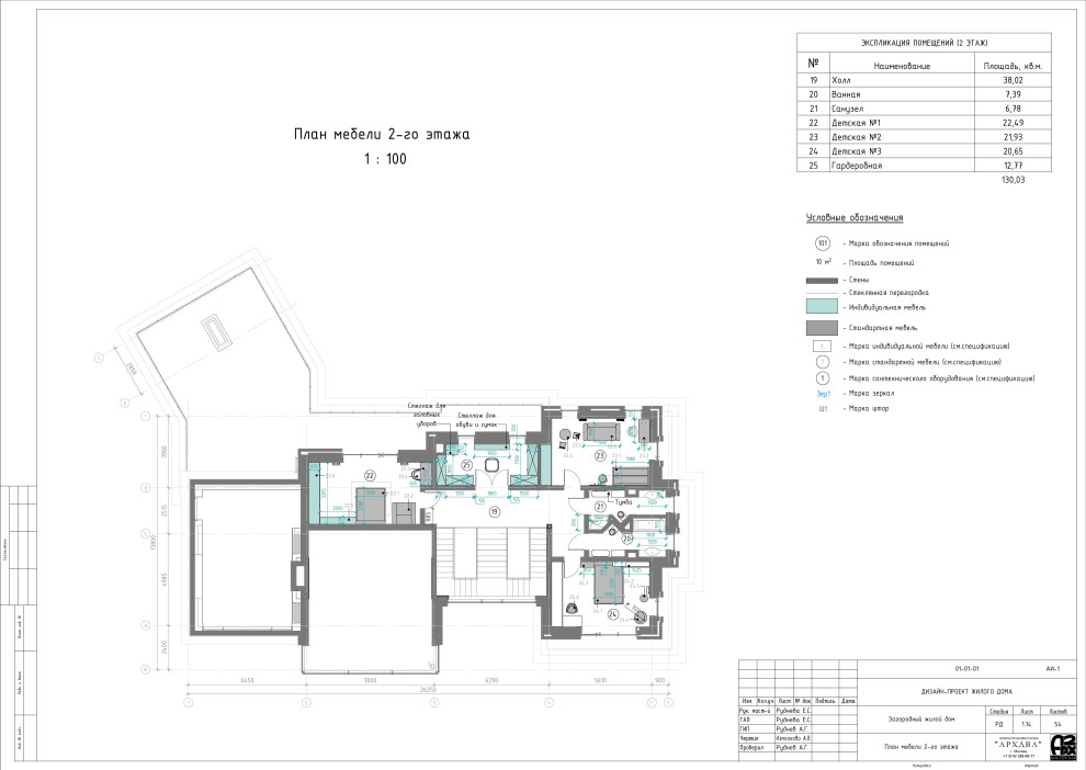
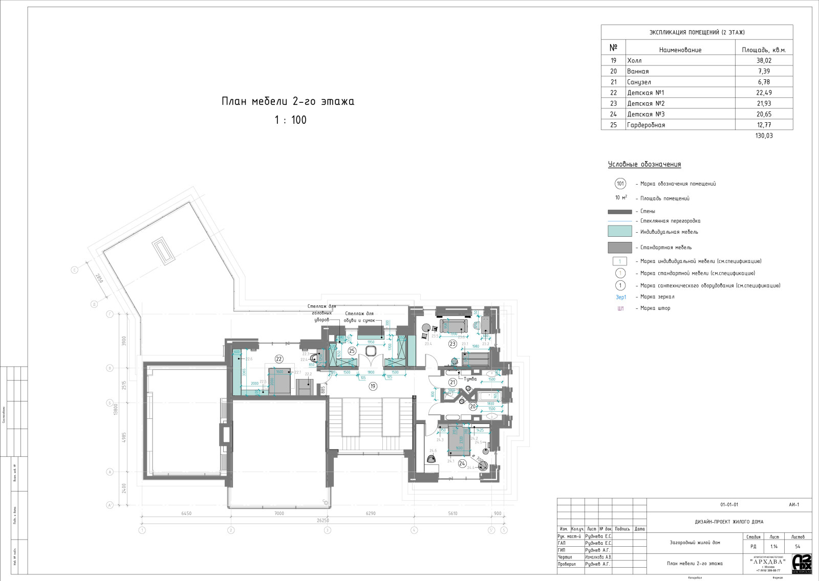
Это проект загородного дома с гаражом и баней для семьи с тремя детьми на берегу реки. Комфортный дом для отдыха всей семьей мы проектировали с учетом всех потребностей семьи.
Год реализации: 2021
Стоимость проектирования: 2 450 000 ₽
19 фотографий




















