logo
Войти
Профиль пользователя

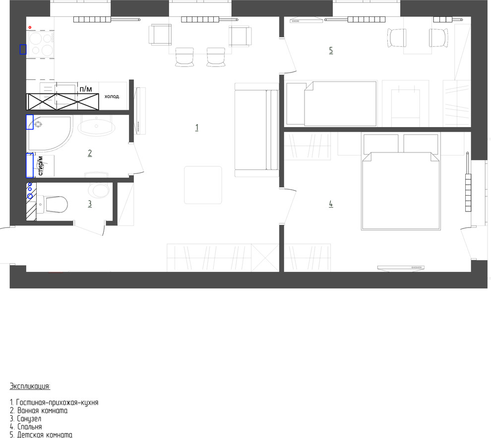
Винтаж light. Квартира 50 м, п. Боровое

Год реализации: 2014
г. Тюмень
photo

2 фотографии

Трехкомнатная из двушки. Квартира 50 м. в Боровом
Трехкомнатная из двушки. Квартира 50 м. в Боровом
Трехкомнатная из двушки. Квартира 50 м. в Боровом
Трехкомнатная из двушки. Квартира 50 м. в Боровом
Фоновое изображение профиля Юлия Комогорова
Фото профиля Юлия Комогорова

Юлия КомогороваЮлия Комогорова

0

0 отзывов

Дизайнеры интерьера

Контакты

julia_komogorova@mail. ru

Все проекты

Шорохи природы. Дом 200 м, Комарово, Тюмень

Траттория Da Cesca, реновация

Терраццо и радуга. Квартира 67 м, ЖК Алые Паруса

Париж сегодня. Квартира 138 м, ЖК Аристократ

Реновация в классике. Квартира 123 м, ул. Гнаровской

Рубин. Квартира 49 м, ул. Горького

Прованс в городе. Квартира 153 м, ЖК Манхэттен

Смотреть все
Флатика
О насМы в прессеFAQКонтактыМатериалыКарта сайта

«Флатика» в соцсетях:

ПинтерестМаксВкДзенTelegramTelegram Pro
Pro
Instagram

Продукт компании Meta, признанной экстремистской организацией, деятельность которой запрещена в РФ

Пользовательское соглашениеПолитика в отношении обработки персональных данных

© 2026 Flatica

ФотоЭкспертыСтатьи