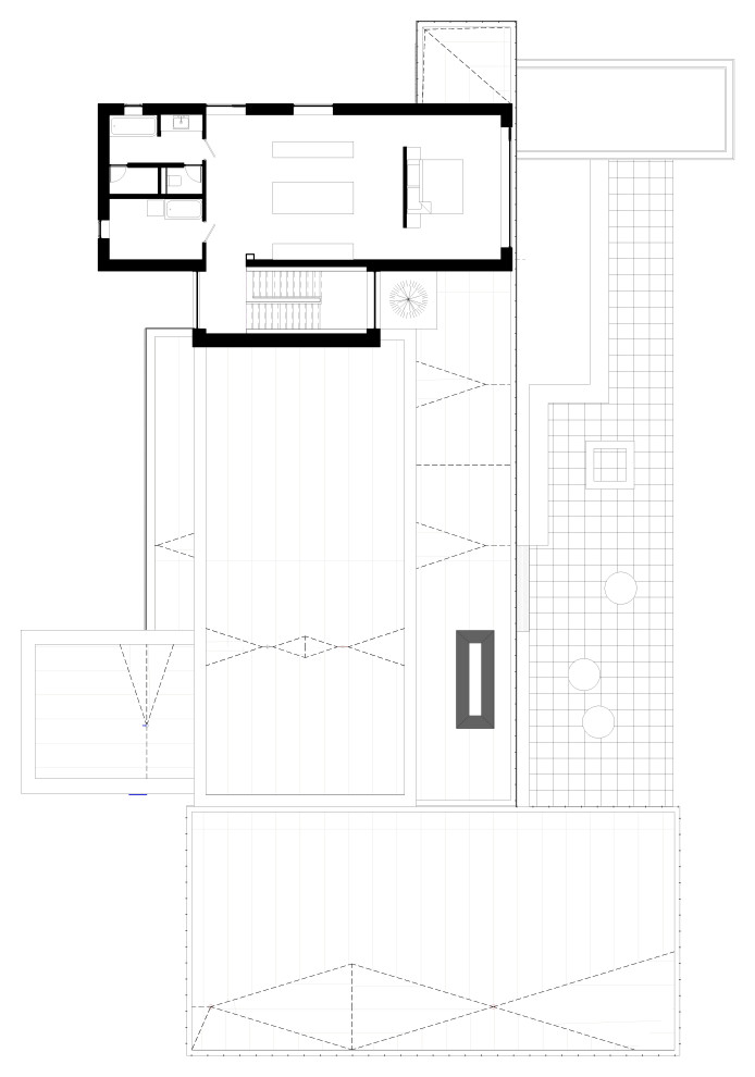
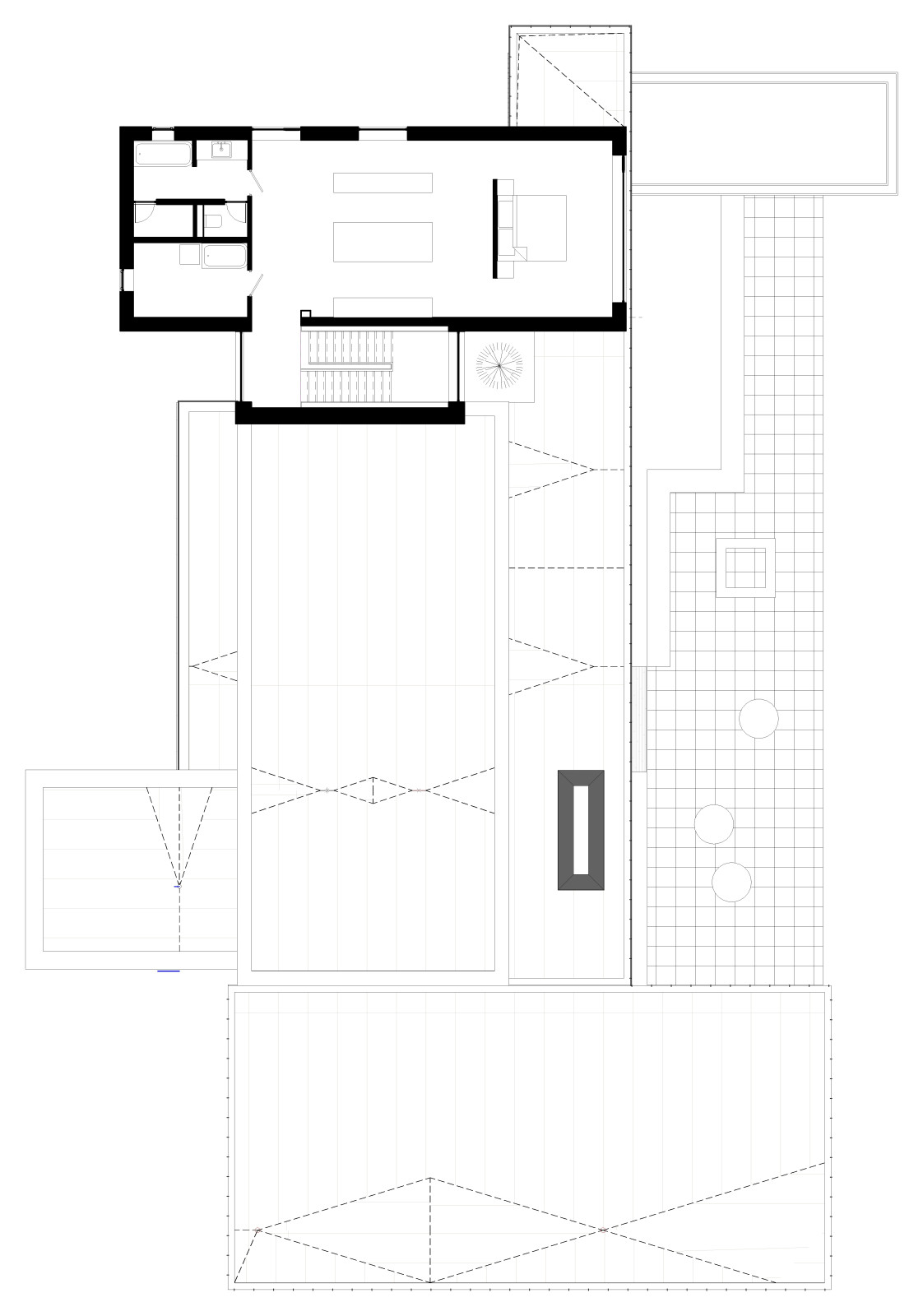
Профиль пользователяVILLA_SOLOГод реализации: 20248 фотографийПоделитьсяСохранитьVILLA_SOLOПоделитьсяСохранитьVILLA_SOLOПоделитьсяСохранитьVILLA_SOLOПоделитьсяСохранитьVILLA_SOLOПоделитьсяСохранитьVILLA_SOLOПоделитьсяСохранитьVILLA_SOLOПоделитьсяСохранитьVILLA_SOLOПоделитьсяСохранитьVILLA_SOLOПоделитьсяСохранить