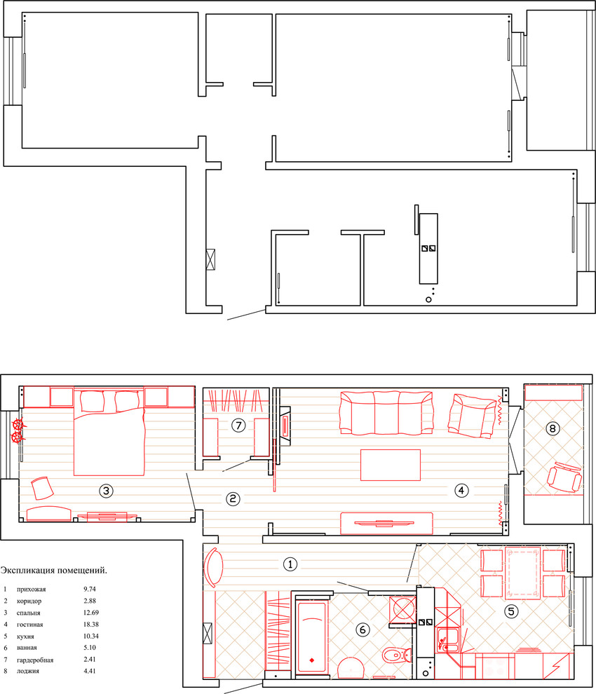
Профиль пользователяУют скандинавского дома в обычной "панельке"Год реализации: 2015г. Санкт-Петербург, Парашютная улица8 фотографийПоделитьсяСохранитьУют скандинавского дома в обычной "панельке"ПоделитьсяСохранитьУют скандинавского дома в обычной "панельке"ПоделитьсяСохранитьУют скандинавского дома в обычной "панельке"ПоделитьсяСохранитьУют скандинавского дома в обычной "панельке"ПоделитьсяСохранитьУют скандинавского дома в обычной "панельке"ПоделитьсяСохранитьУют скандинавского дома в обычной "панельке"ПоделитьсяСохранитьУют скандинавского дома в обычной "панельке"ПоделитьсяСохранитьУют скандинавского дома в обычной "панельке"ПоделитьсяСохранить