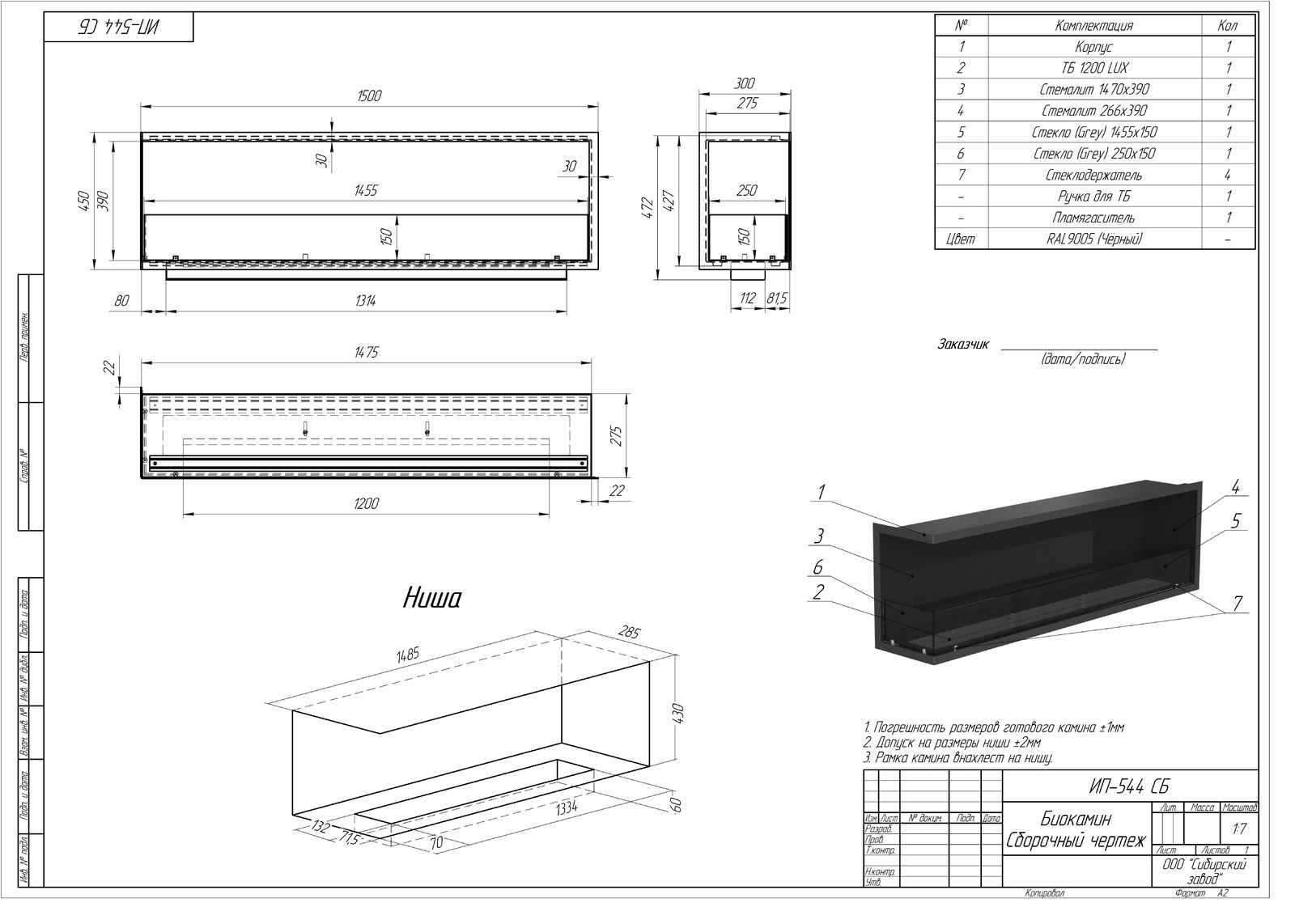
Угловой биокамин.
Биокамин разработан по индивидуальному проекту. . Открытый левый угол. . Размер: 1500х450х300 мм. . Топливный блок 1200 мм LUX. Материал топливного блока нержавеющая сталь, марки ASI 430 толщиной 2-3. . Два стекла короткие.
Год реализации: 2019
Стоимость проектирования: 34 999 ₽
г. Екатеринбург
4 фотографии




