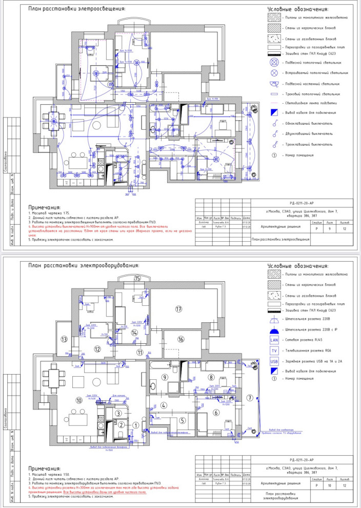
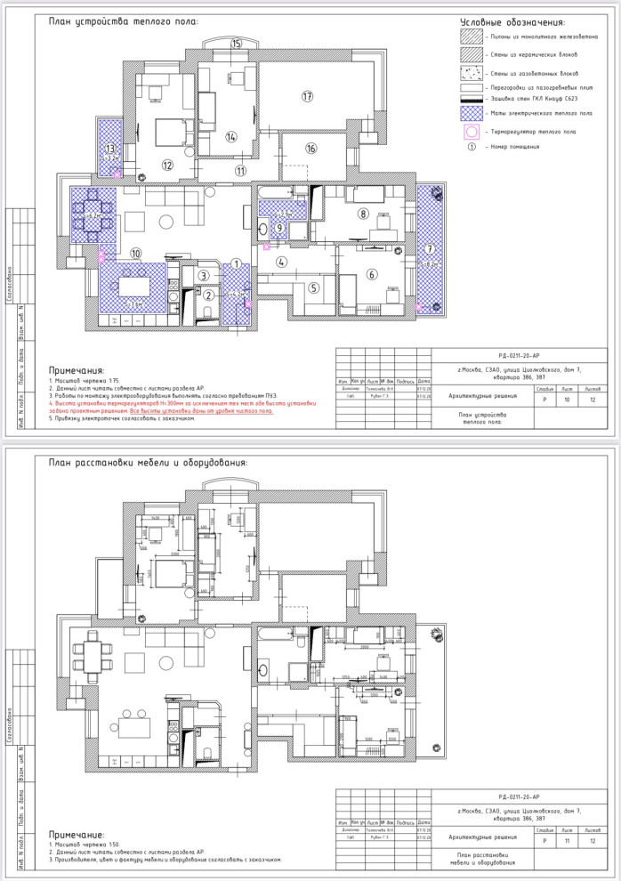
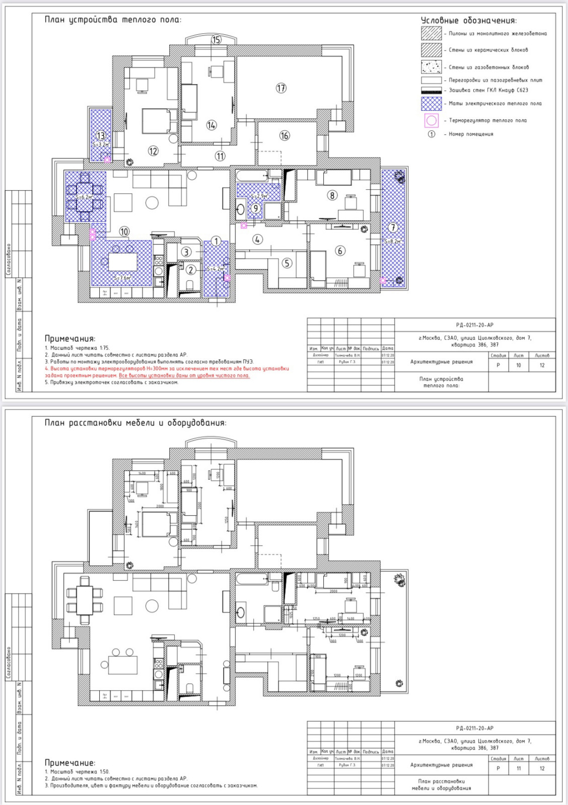
Циолковского 7
Согласованная перепланировка с обьединением двух квартир. . Капитальный ремонт 6 комнатной квартиры для большой дружной семьи с 4 детьми.
Стоимость проектирования: 12 250 000 ₽
г. Москва, Северо-Западный административный округ
28 фотографий





























