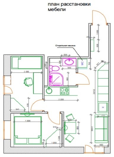
Трешка 44 кв.м.!
Казалось бы невозможно сделать из однокомнатной квартиры - трех комнатную, и уж тем более имея площадь всего 44 кв.м.! И как уместить все вещи? . Мы вам ответим - легко! . История про то, как однокомнатная квартира превратилась в удобное пространство для всей сеьи, с полноценной спальней, кухней-гостиной, детской комнатой.
Год реализации: 2017
12 фотографий













