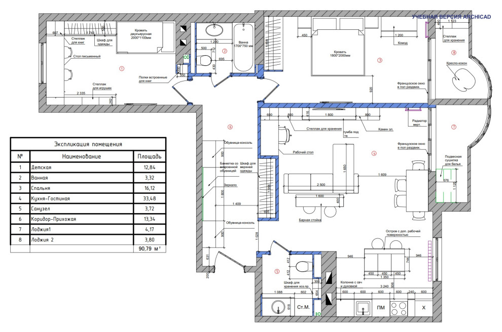
Трехкомнатная квартира для семьи
Необходимо было обьединить кухню и гостиную , а так же организовать там рабочую зону.
Год реализации: 2022
Стоимость проектирования: 34 999 ₽
11 фотографий
Необходимо было обьединить кухню и гостиную , а так же организовать там рабочую зону.
11 фотографий
