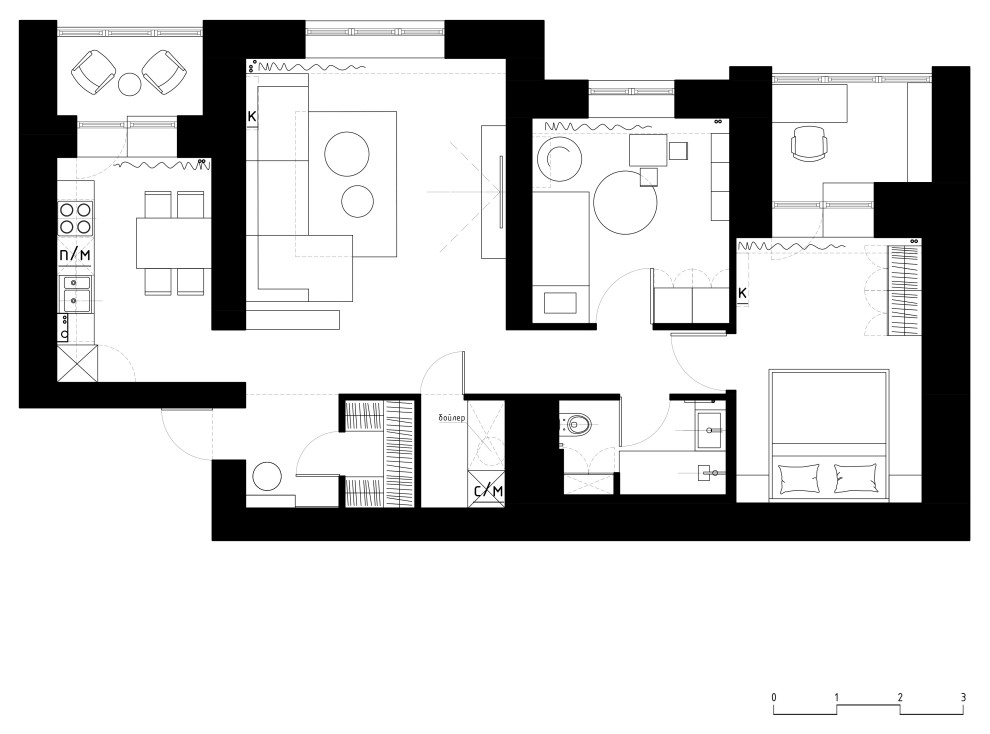
Трехкомнатная квартира 77 м.кв. на проспекте Мира
В квартире будет жить семья из трех человек: мама, папа и дочка 3 лет. . . Данная квартира имеет свои особенности. Здесь есть две лоджии и две несущих стены, которые делят квартиру на три блока. Внутри этих блоков мы использовали перегородки, цвет и другие приемы, чтобы создать функциональное пространство. . . Я удовлетворен тем, что в квартире с такими вводными мне удалось максимально использовать всю площадь квартиры.
Год реализации: 2021
г. Санкт-Петербург
23 фотографии
























