logo

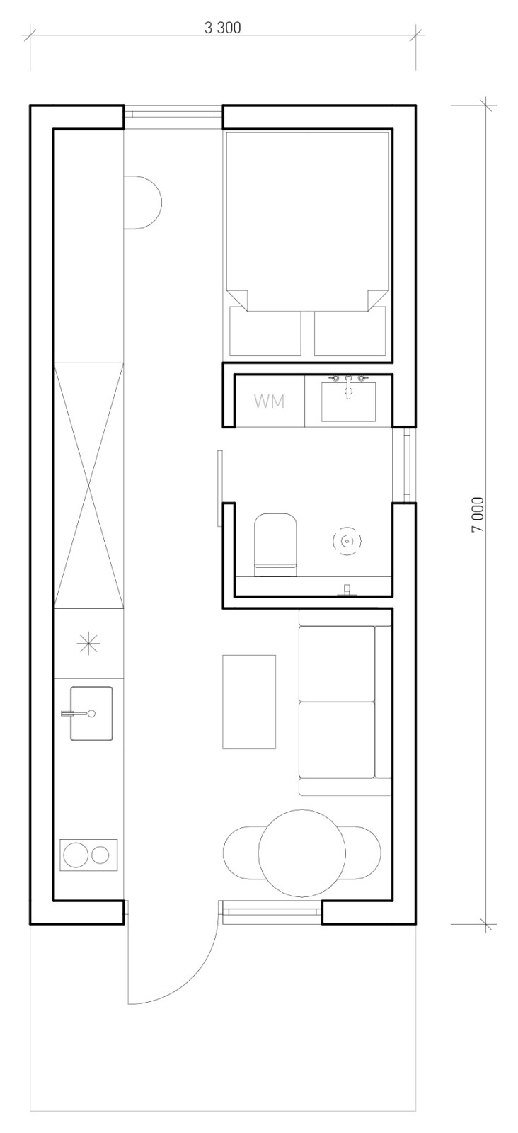
Транспортируемый микро дом XS18

Год реализации: 2021
photo

5 фотографий

Транспортируемый микро дом XS18
Транспортируемый микро дом XS18
Транспортируемый микро дом XS18
Транспортируемый микро дом XS18
Транспортируемый микро дом XS18
Транспортируемый микро дом XS18
Транспортируемый микро дом XS18
Транспортируемый микро дом XS18
Транспортируемый микро дом XS18
Транспортируемый микро дом XS18
Фоновое изображение профиля Алёна Пичугина
Фото профиля Алёна Пичугина

Алёна Пичугина

Проектирование и строительство