Традиционный летний павильон
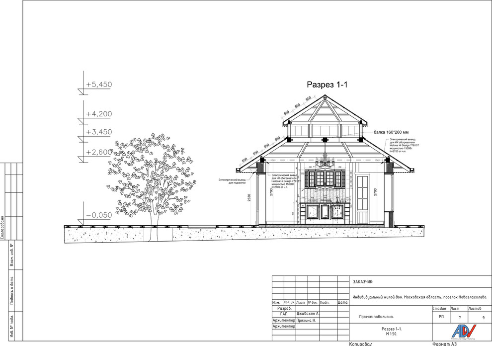
Летний павильон в подмосковье. . Площадь 40м.кв. . Проект реализован в 2015 году. . Длительность проектирования включая разработку мебели: 1,5 месяца. . Длительность реализации включая мебель: 6 месяцев. . Над проектом работали: Антон Джавахян, Наталия Пряхина. . Летний павильон с остеклением, образующим закрытый контур и электрическим отоплением, что позволяет эксплуатировать его в холодные осенние и весенние месяцы. Павильон выполнен из лиственницы, выкрашен белой эмалью, настил площадки из лиственницы, затонированной серым маслом, кухонная мебель и мебель в санузле из массива дуба. .
Год реализации: 2015
Стоимость проектирования: 135 000 ₽
21 фотография






















