Террасированный дом на рельефе в Сочи
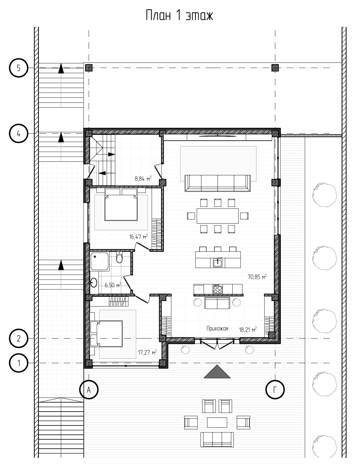
Жилой дом рассчитан на семью из 7 человек . Общая площадь 380 кв.м. . Объект располагается в г. Сочи и основной особенностью участка является сильный уклон. Перепад рельефа составляет около 10 м на всю длину участка. . Гараж рассчитан на 2 машиноместа, он размещён на границе участка, в самой нижней точке. . Первый уровень предназначен для старшего поколения. Здесь размещены кухня-гостиная, отдельные спальни с блоком тех.помещений (гардеробные, санузлы, котельная). На этом уровне также есть выход на просторную террасу с озеленением и благоустройством. . Вход на второй уровень со стороны дворового фасада, по пожеланию заказчика. Тут же предусмотрена зона летней террасы с выходом из кухни. Второй этаж: общая зона для времяпрепровождения всей семьи, панорамные окна в двусветном пространстве ориентированы на видовую панораму. Заказчик хотел максимально просторное и воздушное пространство, чтобы при желании принять большое количество гостей. Второй свет подчеркивает вертикаль окон на фасаде, в простенке расположен камин и при желании на колонне можно разместить ТВ. На этом же этаже размещён кабинет и гостевая спальня. . Третий уровень - жилой. Мастер спальня ориентирована на панорамный вид имеет свой балкон, гардеробную и санузел. Набор хоз.помещений есть и при каждой из детских. . Планировка очень индивидуальная, она сформирована исходя из пожеланий заказчика, а также особенностей участка.
9 фотографий










