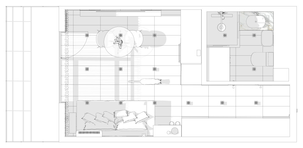
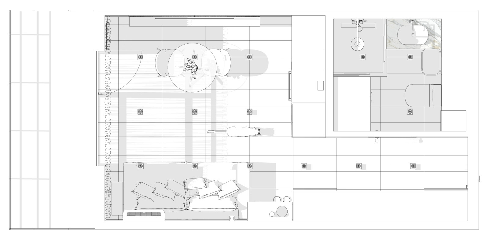
Технический проект. Студия
Технический проект, называется "ВСЕ САМ". В этом проекте, мы берем размеры квартиры, в которую Вы переехали и очень хочется сделать красиво из того что есть, поэтому берем Вашу квартиру ( размеры естественно с вас, фото видео тоже) и смотрим что можно сделать исходя из ваших пожеланий. По итогу получается краткий "концепт план" в виде картинок и небольших комментариев от меня ( в качестве скринов) и со спокойной душой можно заниматься реализацией.
Год реализации: 2023
Стоимость проектирования: 34 999 ₽
15 фотографий
















