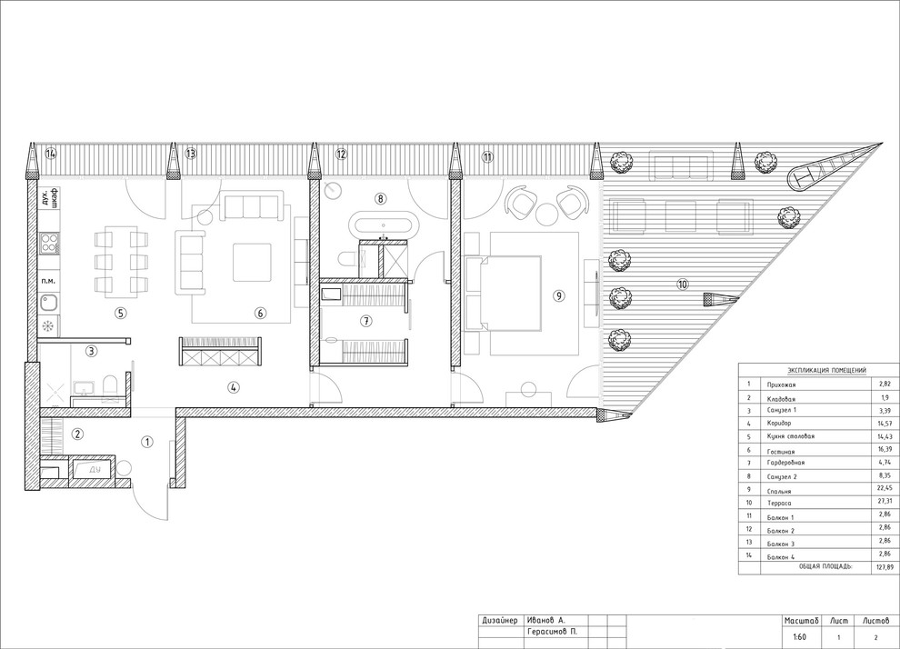
Tatlin Premium Dark Glow 128 кв.м.
Tatlin Apartments — это жилищный комплекс в Басманном районе Москвы. Здание телефонной станции в стиле конструктивизма начала XX века было переосмыслено и реставрировано под жилой комплекс. Наша студия разрабатывала проекты интерьеров квартир и междомовых пространство этого ЖК, которые в дальнейшем будут реализованы с отделкой.
Год реализации: 2018
24 фотографии
























