Таежная Сказка
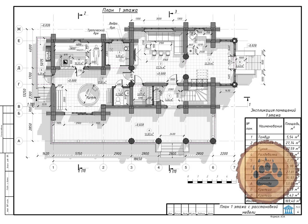
В Сибирской тайге с незапамятных времен русские бани возводились из кедра. Деревянные бани из бревна сибирского кедра и по сей день являются самыми популярными среди построек подобного рода благодаря благотворному для тела и души микроклимату. . Проект гостевого дома с русской баней «Таежная Сказка» из бревна сибирского кедра представляет собой двухэтажное здание, прекрасно совмещающее жилое помещение на втором этаже и зону отдыха на первом, площадь внутренних помещений которого позволяет собрать большую дружескую компанию. . На первом этаже располагается банный комплекс, зона для отдыха и большая веранда. В состав банного комплекса входят вместительная парилка и моечная. Комната для отдыха в своем составе содержит кухонную зону оборудованную всем необходимым. Веранда оборудуется местом для приготовления шашлыков и барбекю. На втором этаже просторная спальня с выходом на балкон. . Такой комплекс прекрасно подходит как для отдыха в кругу друзей и семьи, так и для организации и проведения праздника большой компании. .
17 фотографий

















