Светлая квартира для молодой девушки
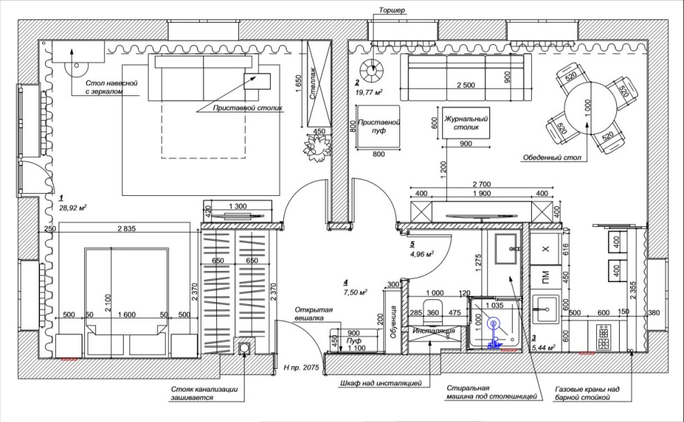
Этот интерьер был спроектирован для молодой девушки. Сама квартира очень светлая, а главным требованием заказчиков были светлые бежевые оттенки. Акцентом я предложила синий цвет. Преимущественно он есть на текстиле и обивке стульев, что легко можно поменять в процессе проживания в квартире, если цвет вдруг надоест и захочется внести разнообразие.
Год реализации: 2020
Стоимость проектирования: 34 999 ₽
г. Москва, Центральный административный округ
9 фотографий










