logo
ФотоЭкспертыСтатьи
Профиль пользователя

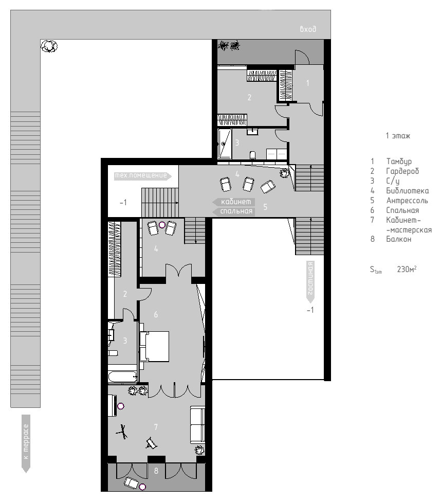
Сurved house

Год реализации: 2021
Стоимость проектирования: 525 000 ₽
photo

4 фотографии

Сurved   house
Сurved house
Сurved   house
Сurved house
Сurved   house
Сurved house
Сurved   house
Сurved house
Фоновое изображение профиля Илья Изинидов
Фото профиля Илья Изинидов

Илья Изинидов

5

1 отзыв

Архитекторы

Контакты

г. Казань, 40 лет ВЛКСМ29 Ижевск
О насМы в прессеFAQКонтакты
ВкДзенTelegramTelegram Pro
Pro
Instagram

Продукт компании Meta, признанной экстремистской организацией, деятельность которой запрещена в РФ

Связаться с поддержкой
Пользовательское соглашениеПолитика в отношении обработки персональных данных