logo
Год реализации: 2018
Стоимость проектирования: 135 000
photo

7 фотографий

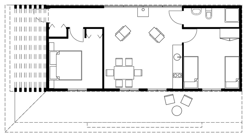
Summer House
Summer House
Summer House
Summer House
Summer House
Summer House
Summer House
Summer House
Summer House
Summer House
Summer House
Summer House
Summer House
Summer House
Фоновое изображение профиля Алексей Мизюркин
Фото профиля Алексей Мизюркин

Контакты