Студия в ЖК Ясный
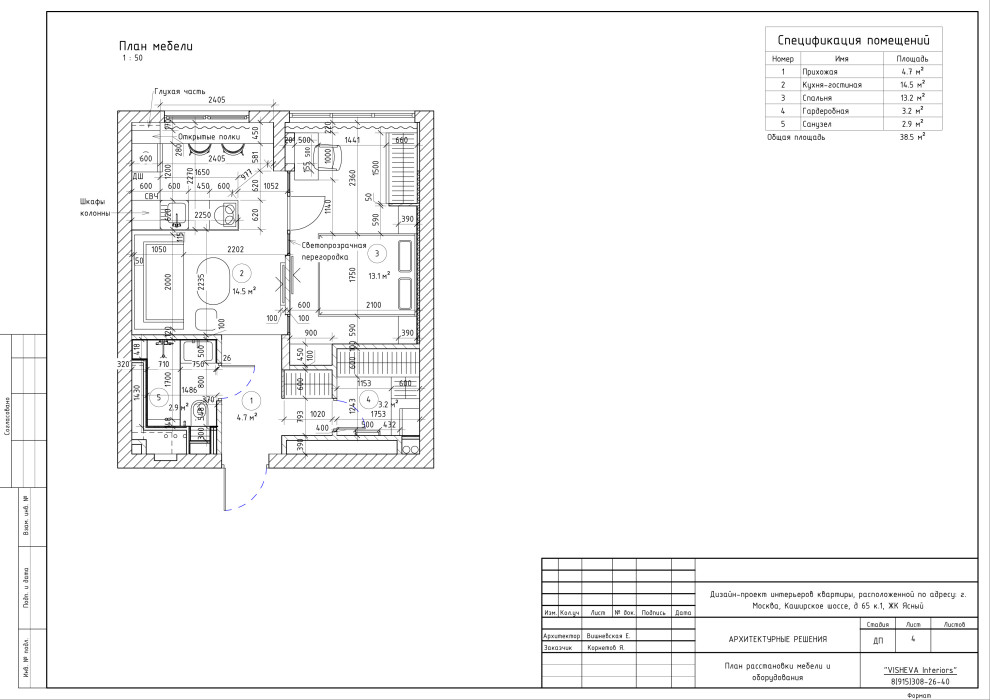
Снова решено несколько задач на небольшой площади. Желанием заказчика было иметь отдельную спальню, кухню объединенную с гостиной, и отдельную гардеробную с функцией прачечной. Показала возможности пространства в планировочных решениях и была выбрана данная организация пространства. Но, чтобы получить пространство светлое и воздушное использвали стеклянные перегородки со шторами между гостиной и спальней. Так, открывая шторы, мы пускаем больше света и видовых ракурсов в оба помещения. Интерьер получился приятным, светлым, натуральным - использован паркет природного цвета дерева и шпонированные фасады кухни и настенные панели, светло-кофейный обволакивающий цвет. Керамогранит под черный мрамор в санузле в сочетании с деревом.
21 фотография






















