logo
Год реализации: 2015
photo

7 фотографий

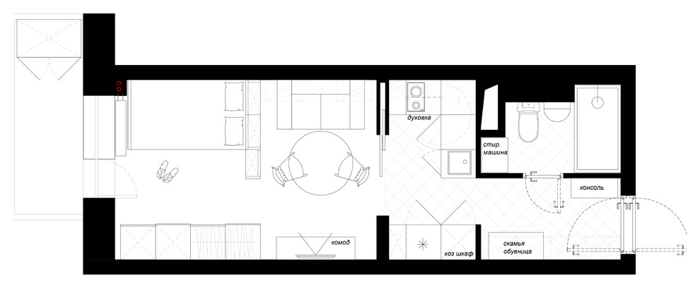
студия 25м2
студия 25м2
студия 25м2
студия 25м2
студия 25м2
студия 25м2
студия 25м2
студия 25м2
студия 25м2
студия 25м2
студия 25м2
студия 25м2
студия 25м2
студия 25м2
Фоновое изображение профиля Nikita Zub
Фото профиля Nikita Zub

Nikita Zub

Дизайнеры интерьера