Стоматологическая клиника “Голливуд”
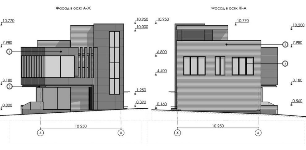
Общая площадь - 613 м² . Этажность - 2 этажа . Особенности: . Проект абсолютно нового здания для современной стоматологической клиники. В составе комплекса: 4 терапии, зуботехническая лаборатория, рентген кабинет, операционная. . . Чем интересен этот проект? . . - второй этаж со стоматологическими кабинетами выдвинут из объема здания и имеет панорамное сплошное остекление на восток . - В холле предусмотрен световой колодец . - лестничная клетка огорожена стеклоблоками со стороны вестибюля и зоны ожидания. . - Для сотрудников предусмотрена зона отдыха на эксплуатируемой кровле . - Натуральные материалы отделки, вписывающиеся в антураж города. . . Выполнено: . ✔Эскизный проект . ✔Рабочий проект
Год реализации: 2024
г. Сочи
5 фотографий






