Стильная квартира для сдачи в аренду
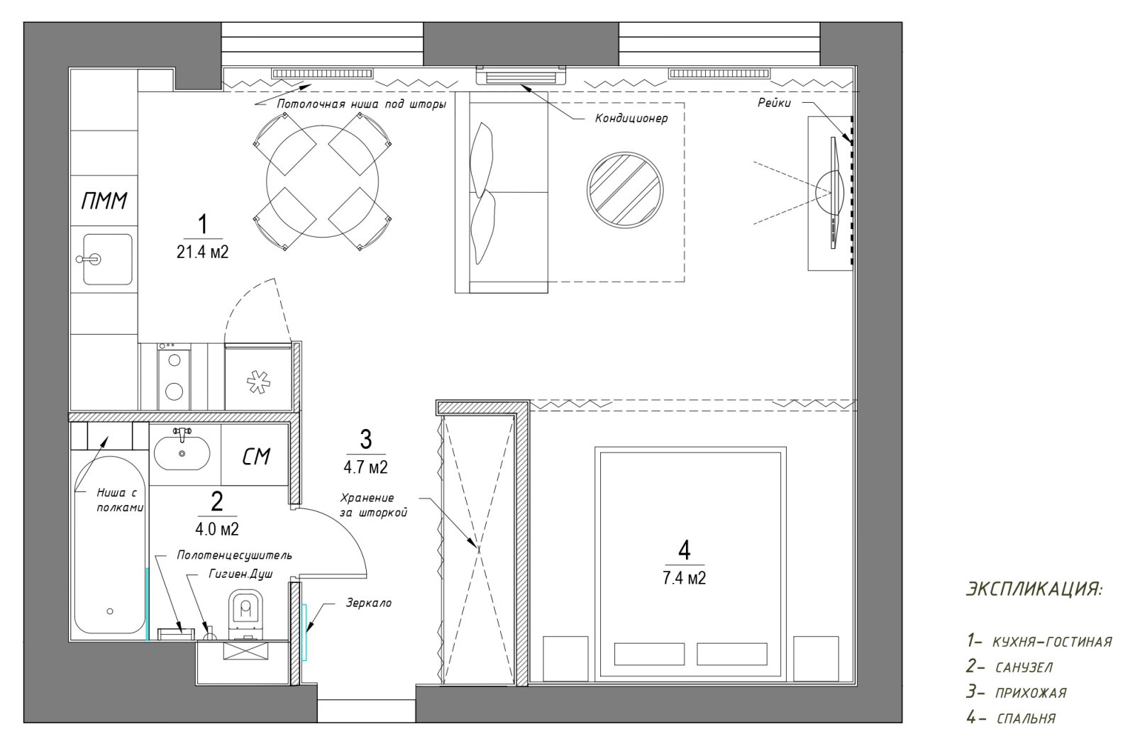
Расположение: Москва, Россия . Площадь: 38м2 . Дизайн: Суворова Анна, Михин Павел
Год реализации: 2020
г. Москва, Северо-Восточный административный округ, район Марьина роща
15 фотографий
Расположение: Москва, Россия . Площадь: 38м2 . Дизайн: Суворова Анна, Михин Павел
15 фотографий
