Современный стиль в проекте ЖК Береговой
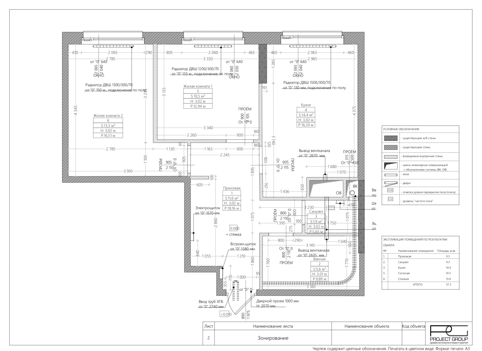
Для квартиры с пред чистовой отделкой разработали проект в современном стиле для молодой девушки. Так же прикрепили исходную планировку от Застройщика и итоговое планировочное решение
Год реализации: 2021
Стоимость проектирования: 525 000 ₽
г. Москва, 3 Береговой проезд, Западный административный округ
21 фотография





















