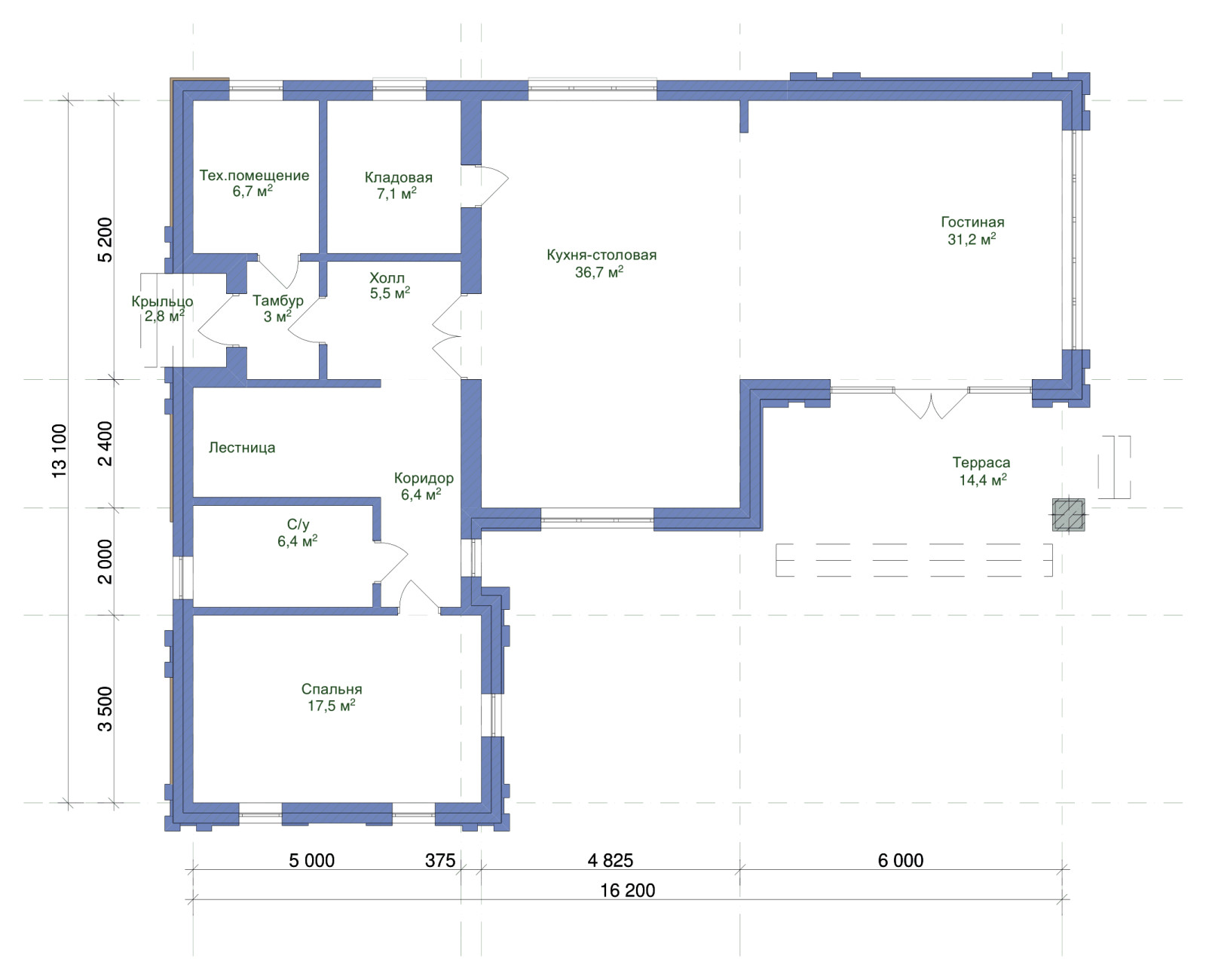
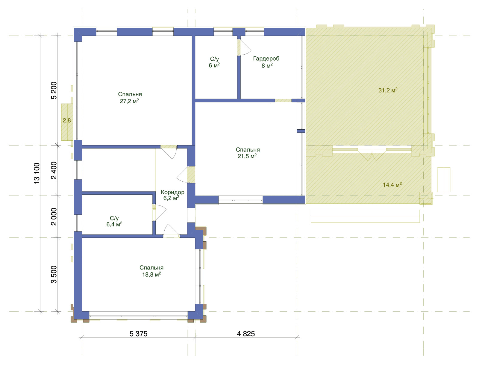
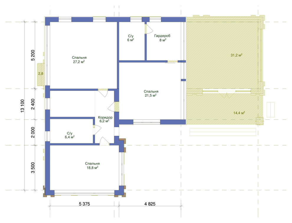
Современный дом в Софрино

Год реализации: 2018
photo

6 фотографий

Современный дом в Софрино
Современный дом в Софрино
Современный дом в Софрино
Современный дом в Софрино
Современный дом в Софрино
Современный дом в Софрино
Современный дом в Софрино
Современный дом в Софрино
Современный дом в Софрино
Современный дом в Софрино
Современный дом в Софрино
Современный дом в Софрино
Фоновое изображение профиля Константин Юрьевич Буров
Фото профиля Константин Юрьевич Буров

Константин Юрьевич Буров

Проектирование и строительство

Контакты

г. Москва