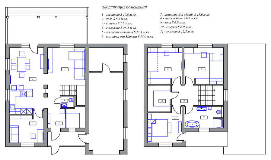
Современный дом 135 м.кв. для семьи с двумя детьми подростками
ЗАДАЧА: . Создать лёгкое, современное пространство, полное света и воздуха. . РЕШЕНИЕ: . Планировку первого этажа сделали открытой. . Объединили гостиную, кухню и прихожую общим покрытием пола, цветом и материалами. Добавили объём гостиной, открыв лестницу. С помощью зеркал растворили несущие колонны. . Использовали белый цвет, большое количество глянцевых поверхностей и стекла. Чтобы уравновесить глянец, сделать интерьер более уютным, добавили стеновые панели с текстурой дерева и яркие цветовые акценты в текстиле. . На зеркальных колоннах установили стеклянное панно с пескоструйным рисунком дерева, стеклянной жилкой и фьюзингом, напоминающим капли дождя. . В РЕЗУЛЬТАТЕ . удалось создать ощущение свежести и свободы, сделать интерьер лаконичным и стильным.
37 фотографий




































