Современная лаконичная квартира для молодой семьи
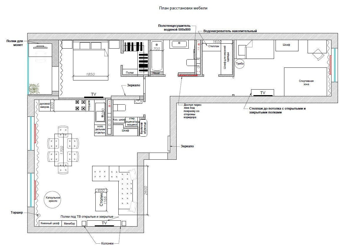
Проект трехкомнатной квартиры для молодой семьи с одним ребенком. . В результате получилось две спальни и просторная кухня-гостиная для совместного времяпрепровождения.
Год реализации: 2019
Стоимость проектирования: 135 000 ₽
г. Одинцово, 10 Белорусская Улица
7 фотографий







