Современная квартира в пастельной гамме.
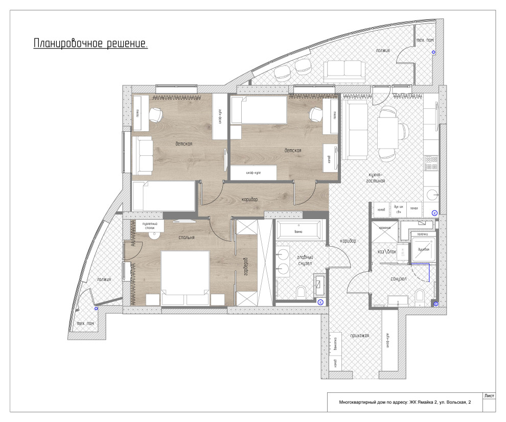
Квартира площадью 120 м.кв. для семьи из четырех человек.
Год реализации: 2020
Стоимость проектирования: 135 000 ₽
г. Саратов, 2 улица Вольская
13 фотографий
Квартира площадью 120 м.кв. для семьи из четырех человек.
13 фотографий
