Современная квартира в Москве для девушки
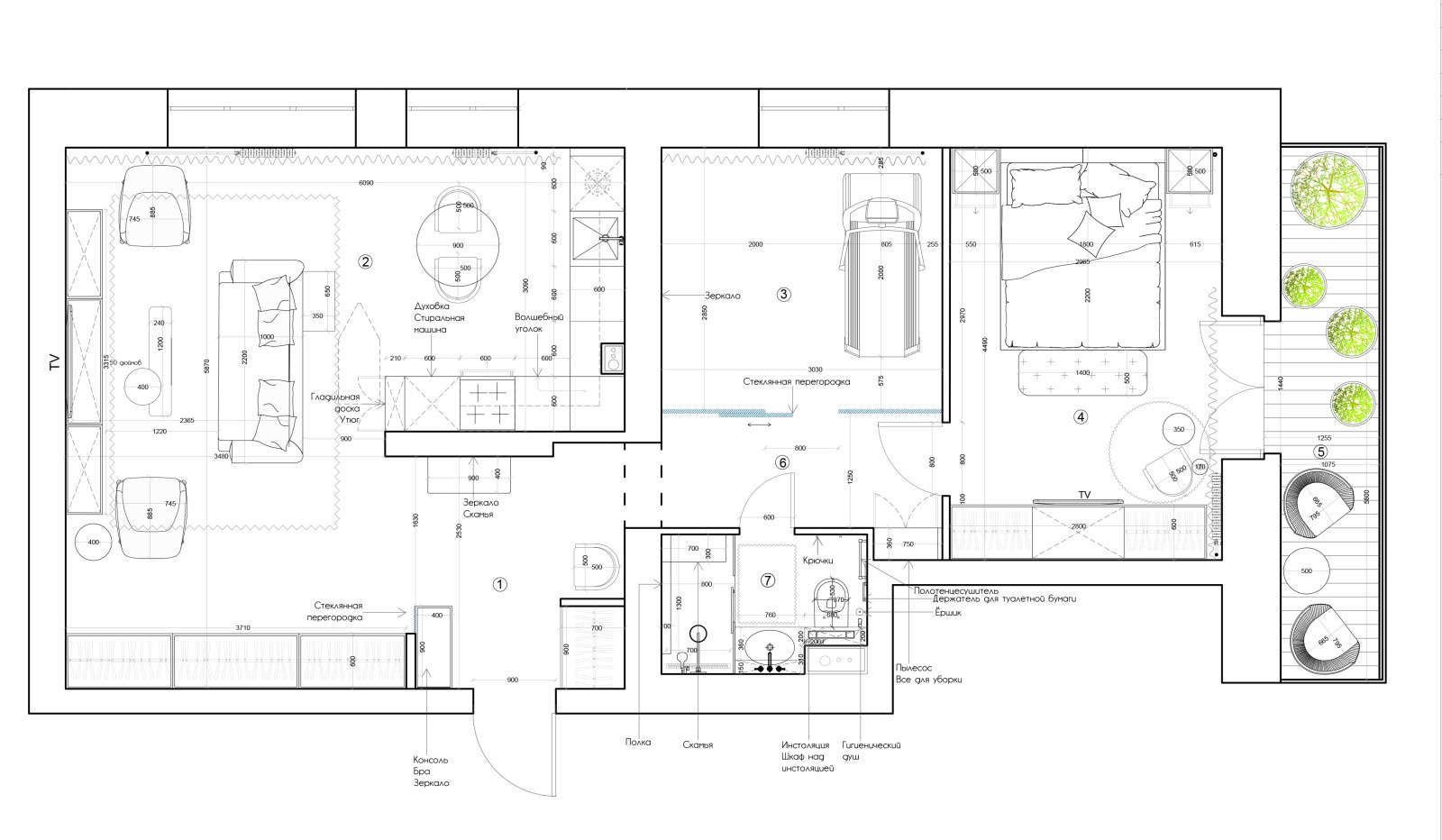
Квартира в старом фонде города Москвы нуждалась в современной перепланировке для визуального расширения пространства и грамотного функционального зонирования, позволяющего вместить большие удобные зоны для хранения, современное оснащение и отдельный тренажерный зал.
Год реализации: 2021
Стоимость проектирования: 5 250 000 ₽
10 фотографий









