Солнечная квартира на Горной улице
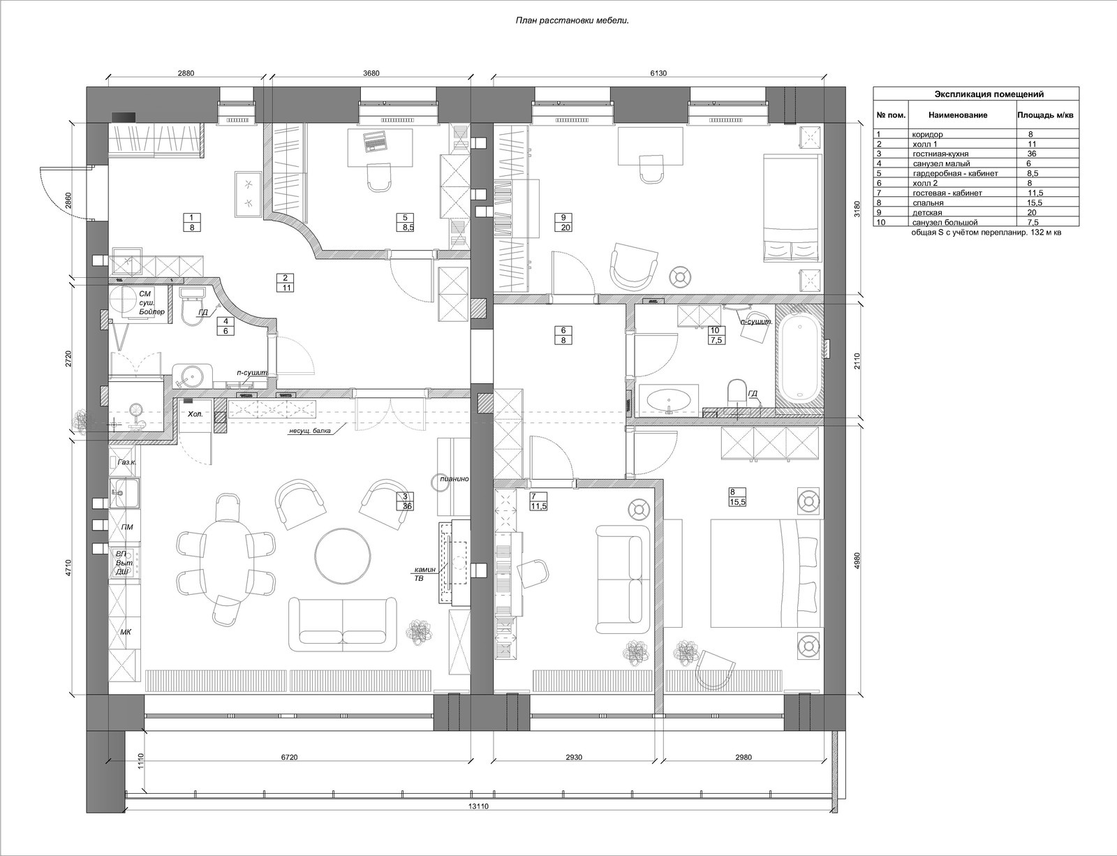
Хозяева этой чудесной квартиры, расположенной в тихом, красивом районе "Коломяги" г. Санкт-Петербурга, изначально хотели получить светлый, солнечный образ своего дома, современный интерьер, но с элементами классического стиля. . Квартира получилась очень атмосферной с особой аурой, с продуманной, функциональной планировкой. Большая часть мебели создана по эскизам автора проекта. . У интерьера сформировалась достаточно жизнеутверждающая цветовая палитра, которая очень гармонирует с темпераментом и энергетикой самих хозяев, и возникла, прежде всего, с их подачи. . Процесс стройки и комплектации получился дружественным и интересным. Хорошо, когда заказчики и дизайнеры на одной волне.) .
Год реализации: 2017
Стоимость проектирования: 525 000 ₽
г. Санкт-Петербург, Горная улица
20 фотографий




















