Солнечная ривьера
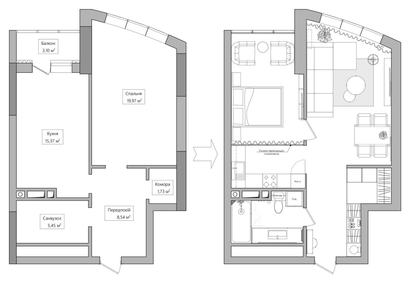
Основной задачей было создание функционального пространства для жизни молодой пары. . После перепланировки заказчик получил полноценную двухместную кровать с комфортным местом для чтения, и гостиную с большим диваном трансформером + обеденную зону со столом на 4 персоны. Место приготовления и хранения продуктов превратилось в кухню - нишу с дополнительной вентиляцией и естественным освещением благодаря стеклянной перегородке. . Ванная комната вместила в себе все необходимое, даже "прачечную", встроенную за фасадами. В качестве мест хранения было запроектировано встроенный шкаф, скрывающий вход в гардеробную. . Были использованы различные сценарии освещения, которые успешно создают настроение в любое время суток.
18 фотографий



















