Сочный микс (3-к квартира для молодой семьи)
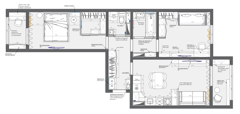
Дизайн 3-к квартиры разрабатывался для молодой семьи из трех человек. Важно было учесть максимальную функциональность пространства и большое количество мест хранения. Для хозяйки крайне важна была правильная эргономика пространств. Также хотелось сделать квартиру яркой и запоминающейся, но чтобы это не переросло в визуальный шум.
Год реализации: 2025
Стоимость проектирования: 140 000 ₽
Стиль: Современный
г Липецк, ул Механизаторов, д 15а
19 фотографий




















