Сходненская
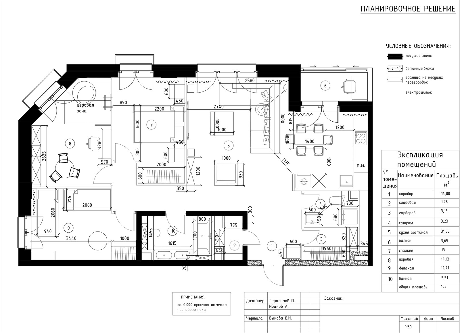
Этот дизайн-проект разработан для семьи с двумя сыновьями. Это квартира в Москве, площадью 100 м2, выполненная в современном стиле. . Заказчик работает в сфере IT-технологий, его супруга – домохозяйка. Домашнее животное – кошка. Семья любит принимать у себя своих друзей с детьми – это также нужно было учесть. . . На этапе технического задания заказчик просил предусмотреть в интерьере отдельную гардеробную, совместную зону гостиной-столовой-кухни, создать второй санузел с душевой для гостей. Также важно было разместить в интерьер гостевую спальню для того, чтобы гости могли комфортно оставаться с ночевкой. . . Так как это апартаменты со свободной планировкой, где практически полностью отсутствовали стены, то нам не требовалось каких-либо согласований. . . Фотограф: Евгений Кулибаба . Стилист: Людмила Кришталева
47 фотографий















































