Скандинавский интерьер в немецком доме в российском городе.
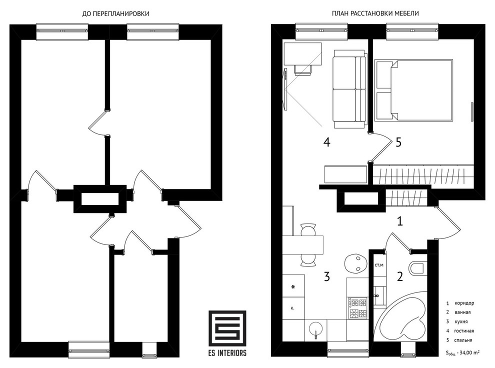
Фото, текст: Александр Шевцов, www.alexandershevtsov.com . Фото "до", дизайн: Екатерина Олейник, www.es-interiors.ru . . Обычно я фотографирую интерьеры за деньги. Работа у меня такая. Но эта квартира похитила сердце «самого бесчеловечного фотографа Калининграда» и я с удовольствием поработал безвозмездно. Да что там, я бы даже заплатил за возможность поработать в такой обстановке! Здесь всё, как я люблю: уютно, светло, интересно и при этом довольно просторно, не смотря на площадь в 34 квадратных метра. А ещё хорошо видна работа дизайнера и декоратора и незаметен бюджет. . . . «Мы поняли, что жить в чужом не сможем» . . История этого невероятного уютного интерьера началась с поиска съёмной квартиры для молодой семьи. Дмитрий и Екатерина искали жильё для аренды, но быстро пришли к общему мнению, что в чужой обстановке им будет некомфортно и переключились на поиски квартиры для покупки. . . . «Последний раз окна мыли ещё немцы» . . Состояние квартиры было... как после войны: в ней никогда не делали полноценный ремонт, а за отопление отвечала маленькая печь-буржуйка. Прежде, чем начинать строить новый светлый мир, пришлось сломать старый прогнивший. Разрушили все до основания, пока не увидели соседские обои. Под штукатуркой в будущей гостиной обнаружилась красивая кирпичная кладка, а в коридоре - дымоход. Он был в полуразрушенном состоянии, пришлось покупать аутентичный немецкий кирпич и восстанавливать. . . . «Кирпичную кладку красили всей семьей, кто когда мог» . . С выбором стилевого и пространственного решений проблем не возникло. Современный, светлый с яркими акцентами скандинавский интерьер органично вписался в старый немецкий дом. Молодые супруги с помощью рабочих начали заново возводить стены, изменив расположение проёмов, заливать стяжку пола, прокладывать новые коммуникации, подшивать потолок, красить стены и клеить обои. . . . «За два рулона шведских обоев отдала всю зарплату» . . Более, чем скромный бюджет потребовал выбирать отделочные материалы из тех, что были в наличии в магазинах. Многое было куплено по акциям на распродажах. Например, подвесной унитаз за 249 (двести сорок девять, Карл!) рубля. Керамический декор в ванной собирался по одной-две плитке из разных магазинов, остальное пространство заполняли самой простой белой и черной плиткой. Найти узкую раковину и смеситель с коротким носом оказалось почти невозможно, как и стиральную машину глубиной 33 сантиметра. Идея интерьера сформировалась в 2010 году на одной только творческой интуиции Екатерины, тогда ещё без профильного образования и опыта. 2011 год прошёл в воплощении планов в реальность, а окончательный вид квартира приобрела к 2015 с наполнением бытовой техникой и элементами декора. Впрочем, с появлением в семье маленькой Софии, у проекта открылось «второе дыхание». . . . «Даже зеркало из советской эпохи нашло себе место в интерьере» . . Когда дело дошло до мебели, в ход пошли краски и кисточки, брус, поролон, ДСП и ткани. Комод, «в девичестве» носивший вишнёвый окрас типовой советской мебели, получил стильные черно-белые полоски. А изголовье кровати сделали высоким и мягким под размер её основания. Многие детали и аксессуары заказывались через интернет-магазины. Например, стул приехал из Москвы, постер — из Нью-Йорка, а оригинальные детские игрушки — от мастеров из Петербурга. . Конечно, с таким тщательным и душевным подходом к каждому сантиметру и детали интерьера, он не теряет своей актуальности и свежести. Смотрите сами:
57 фотографий


















































