Шоколадный торт
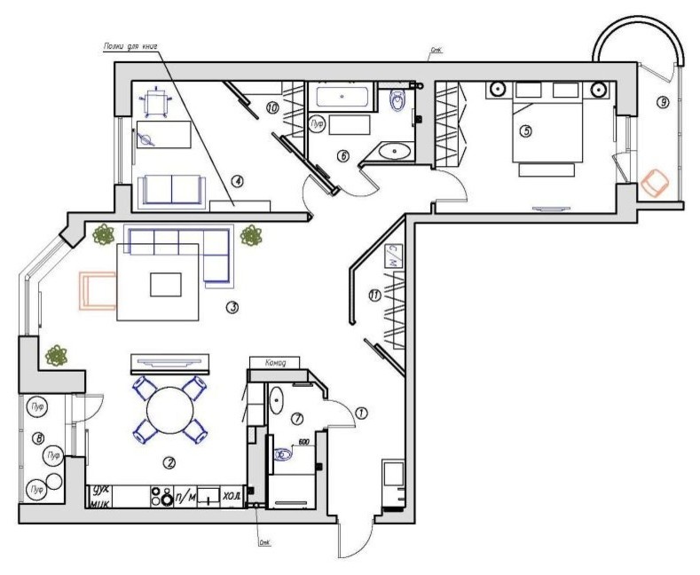
Интерьер трехкомнатной квартиры для молодой семьи. В интерьере чувствуется контраст - между материалами, цветами, стилем. В целом интерьер современный и яркий. В нем присутствует четкость и ясность. Все очень функционально и ярко. В интерьере присутствует ритм. Каждое помещение в нем по-своему интересно и несет в себе новые эмоции.
Год реализации: 2016
г. Екатеринбург
18 фотографий



















