logo
Войти
Профиль пользователя

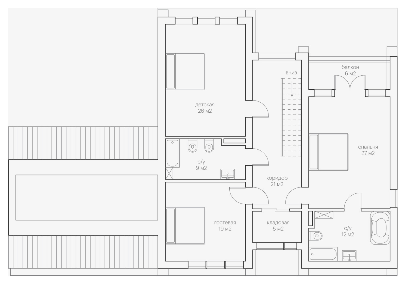
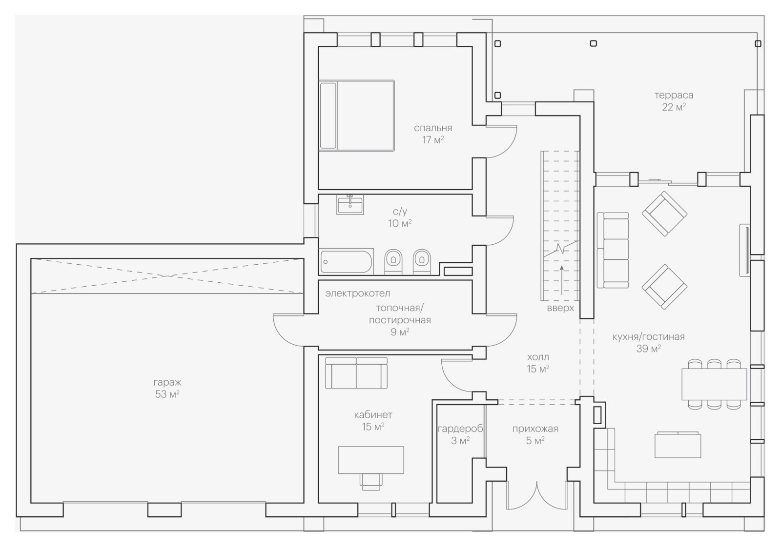
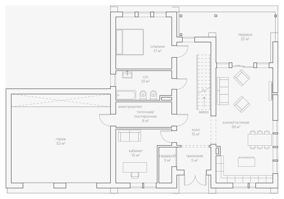
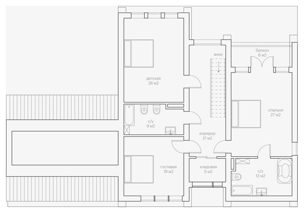
Seasons private house

Год реализации: 2021
г. Санкт-Петербург
photo

5 фотографий

Seasons private house
Seasons private house
Seasons private house
Seasons private house
Seasons private house
Seasons private house
Seasons private house
Seasons private house
Seasons private house
Seasons private house
Фоновое изображение профиля Skatra Architects
Фото профиля Skatra Architects

Skatra ArchitectsSkatra Architects

5

2 отзыва

Архитекторы

Контакты

г. Москва, ул. Профсоюзная 76

Все проекты

Semeno

Kerro private house

S07.Volga private house

Ukki Privat House

Смотреть все
Флатика
О насМы в прессеFAQКонтактыМатериалыКарта сайта

«Флатика» в соцсетях:

ПинтерестМаксВкДзенTelegramTelegram Pro
Pro
Instagram

Продукт компании Meta, признанной экстремистской организацией, деятельность которой запрещена в РФ

Пользовательское соглашениеПолитика в отношении обработки персональных данных

© 2026 Flatica

ФотоЭкспертыСтатьи