санузел Day&Night Keros
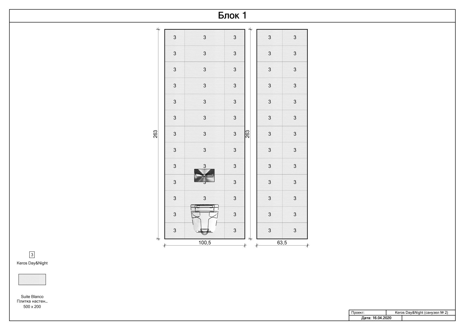
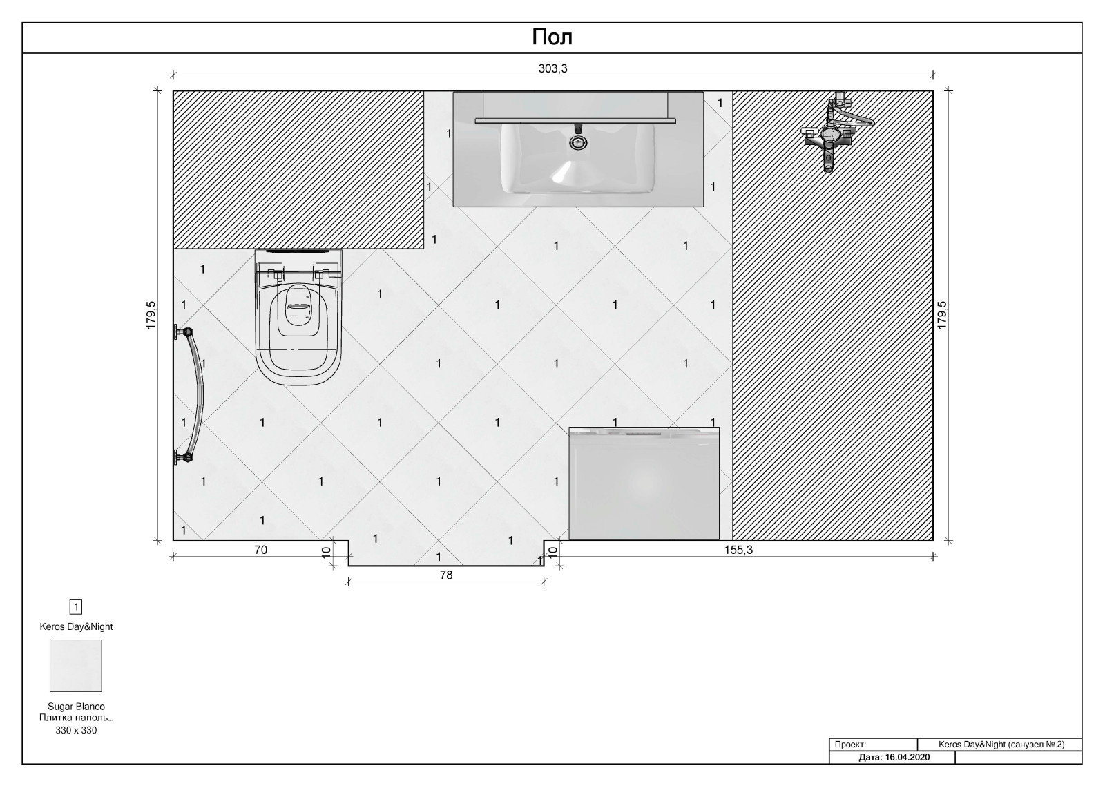
В проекте использована плитка из коллекции Day&Night завода Keros. . Общая стоимость плитки по проекту - 87296 руб.
Год реализации: 2020
Стоимость проектирования: 135 000 ₽
12 фотографий
В проекте использована плитка из коллекции Day&Night завода Keros. . Общая стоимость плитки по проекту - 87296 руб.
12 фотографий
