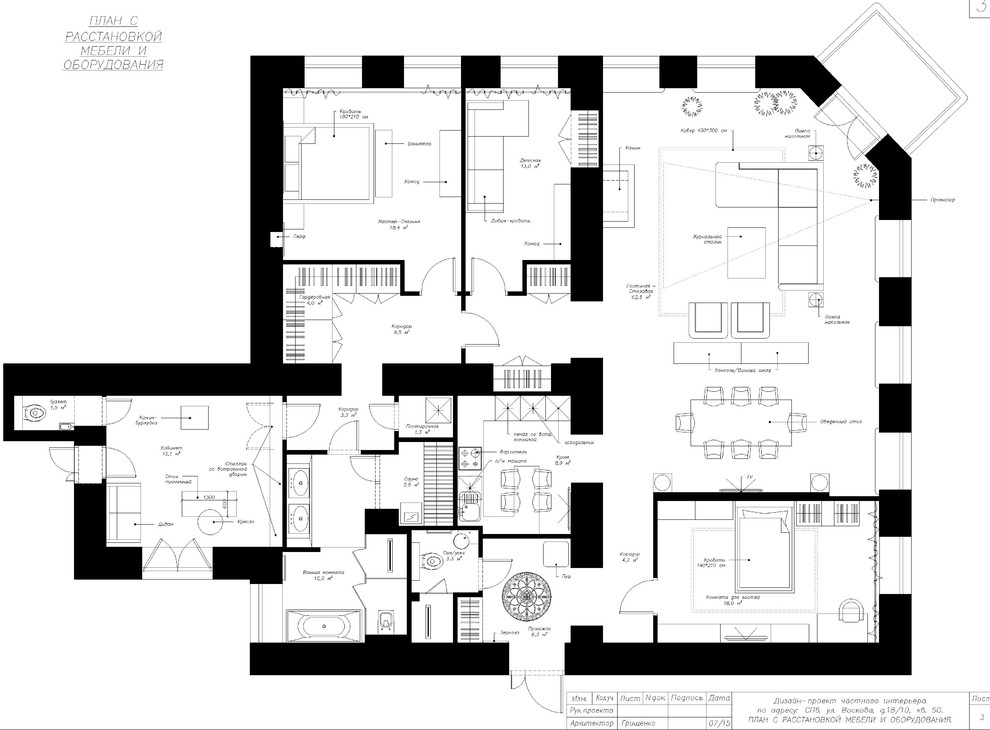
Санкт-Петербург, Петроградская сторона
Пока шли ремонтные работы у заказчика поменялись приоритеты и он вернулся в Америку, а квартиру выставили на продажу. (поэтому в ней нет мебели и техники)
Год реализации: 2015
Стоимость проектирования: 5 250 000 ₽
22 фотографии























