Sandy Riviera (проект загородного дома в подмосковье)
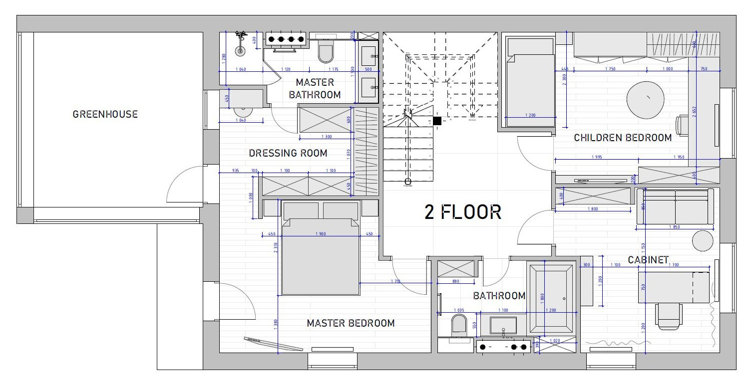
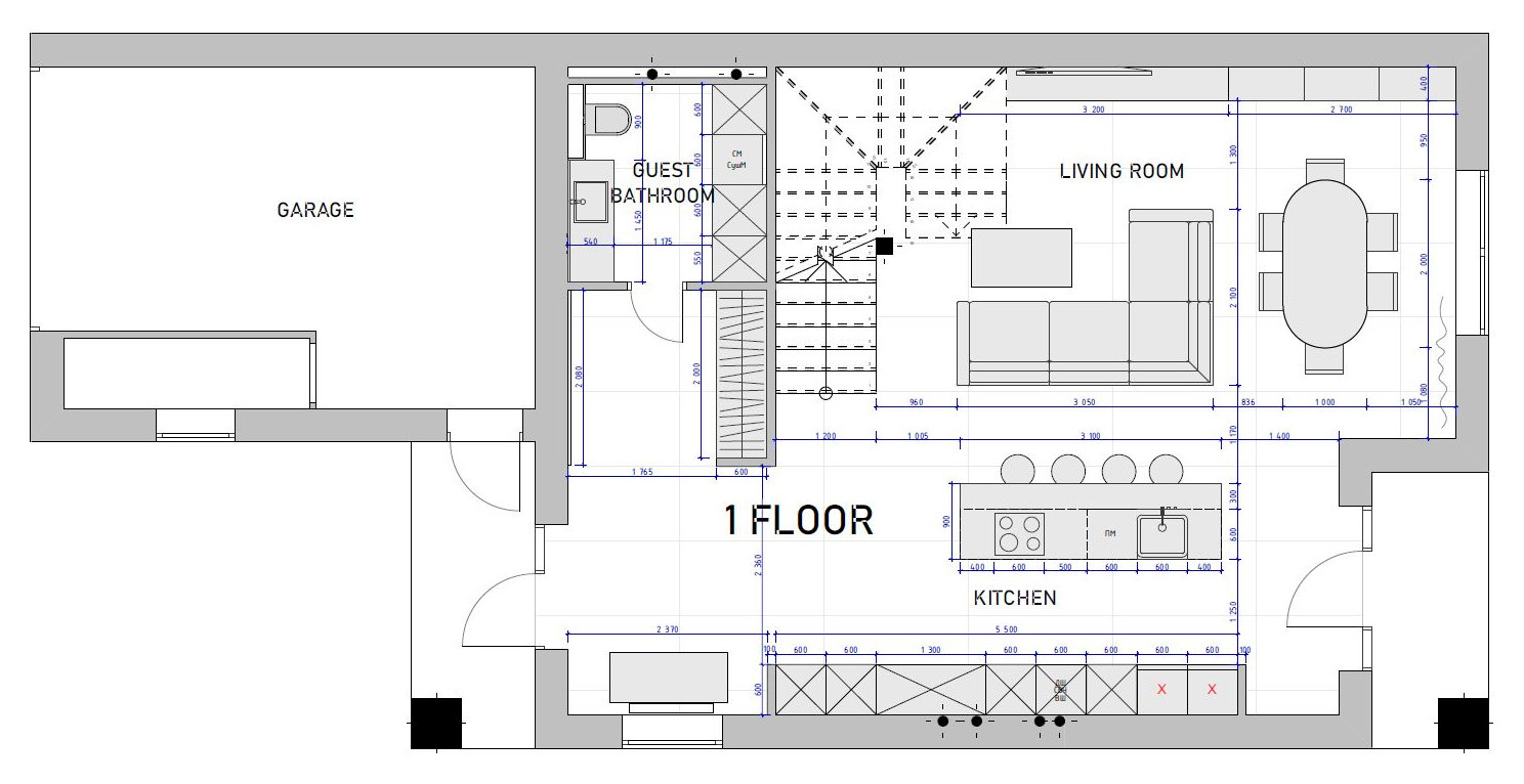
Дизайн проект загородного дома в коттеджном поселке. . Хозяева дома любят отдыхать на испанском побережье, поэтому в проекте присутствует атмосфера средиземноморского стиля. Использована декоративная штукатурка песочного оттенка, керамогранит под мрамор, деревянные жалюзи, обилие света, натуральные оттенки, дерево. Дом 3-этажный, 3 этаж отдан под гостевую зону.
Год реализации: 2021
42 фотографии










































