Салон красоты в Калининграде
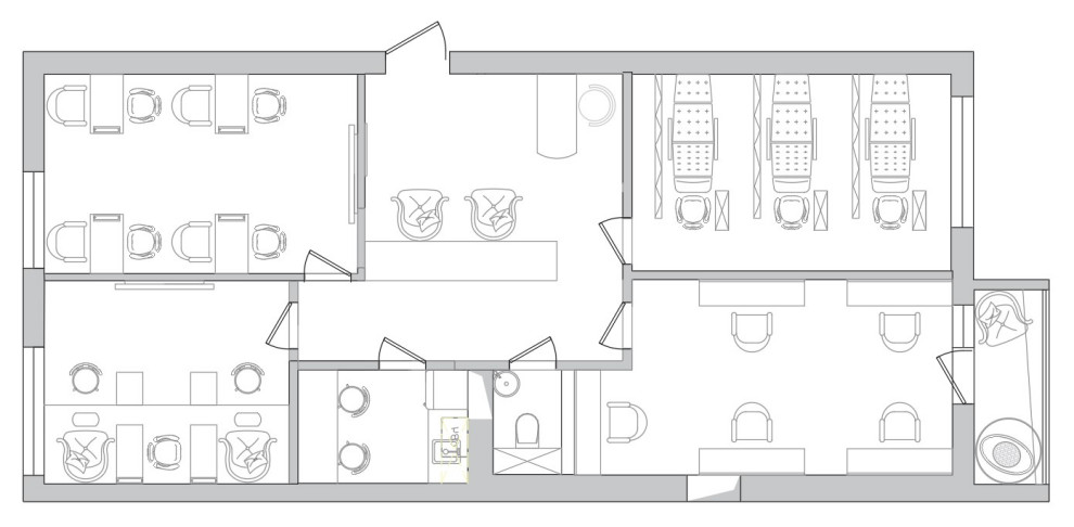
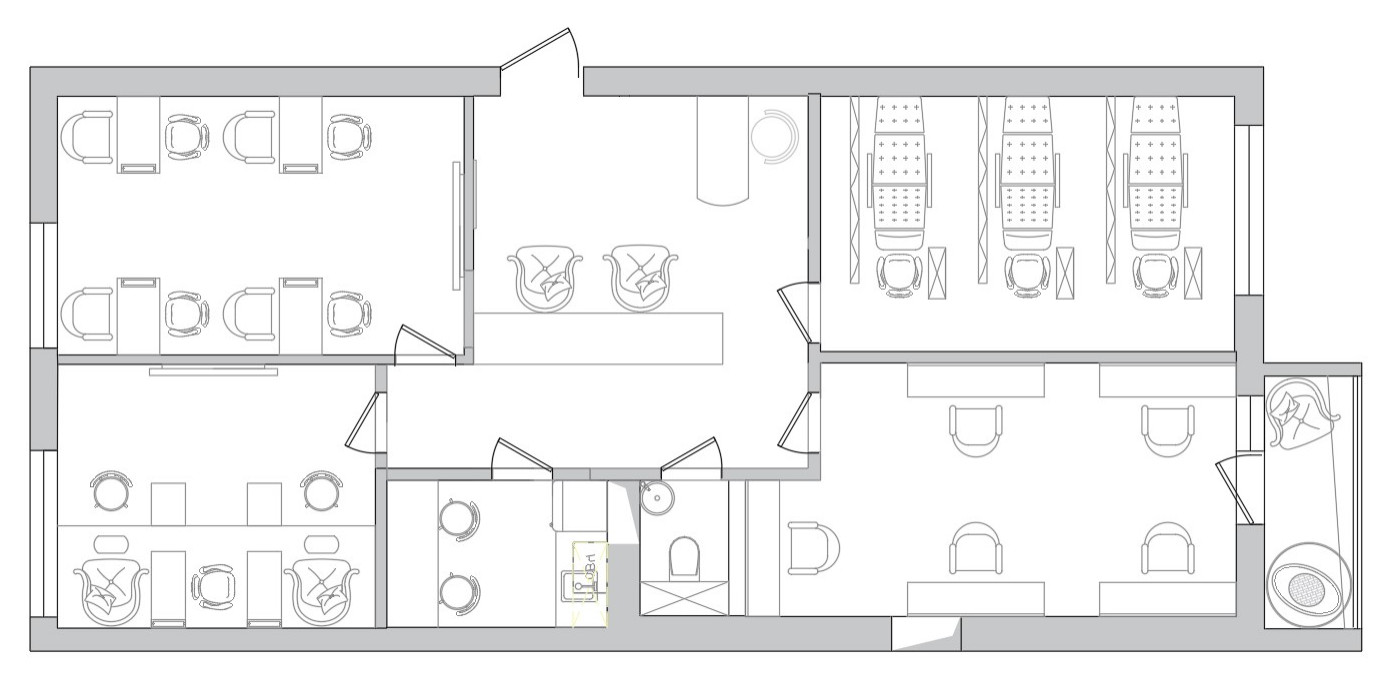
Проект разработан для салона красоты. Выделены помещения: ресепшн, кабинеты мастера наращивания ресниц, бровиста, визажиста, комната отдыха персонала, санузел, кухня для персонала, кабинеты педикюра, маникюра. Стилевое решение предложено джапанди, ваби-саби . Основная идея этого проекта- территория природной, естественной красоты, расслабленности и эстетики.
Год реализации: 2023
Стоимость проектирования: 2 450 000 ₽
г. Калининград
36 фотографий





































