ресторан "Кизил"
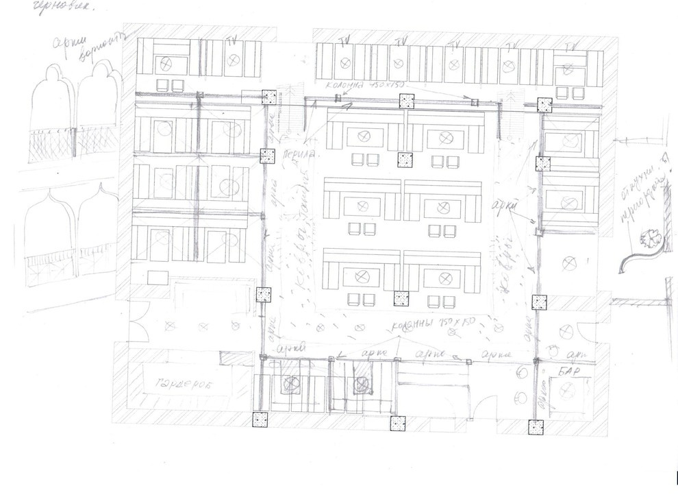
ресторан был создан на месте многоуровневой открытой парковки торгового центра. существующие несущие конструкциидекорированы под восточный интерьер.
Год реализации: 2013
46 фотографий
ресторан был создан на месте многоуровневой открытой парковки торгового центра. существующие несущие конструкциидекорированы под восточный интерьер.
46 фотографий
