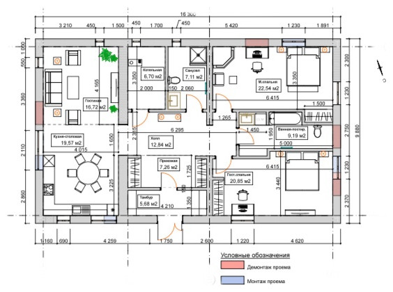
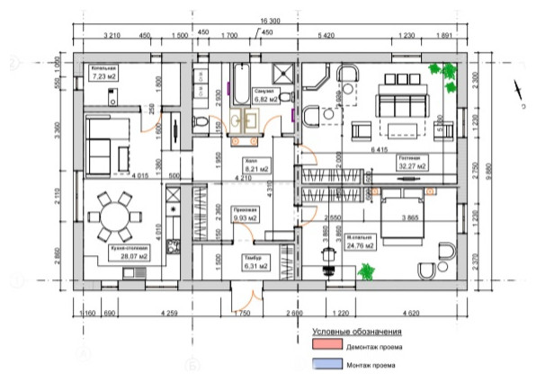
Redevelopment project (проект перепланировки двухэтажного инд.жил.дома в одноэта
The main goal of the project was to change the level of a residential building from 2 levels to 1. It was also important to add new functionality and make the old rooms more comfortable. . . Задачей проекта была организация пространства двухэтажного жилого дома в одноэтажный. При сокращении площади, было важно сохранить функциональные помещения, сделав их более комфортными.
Год реализации: 2023
Стоимость проектирования: 157 500 ₽
7 фотографий








