Реализованный проект гостевой квартиры с видом на реку
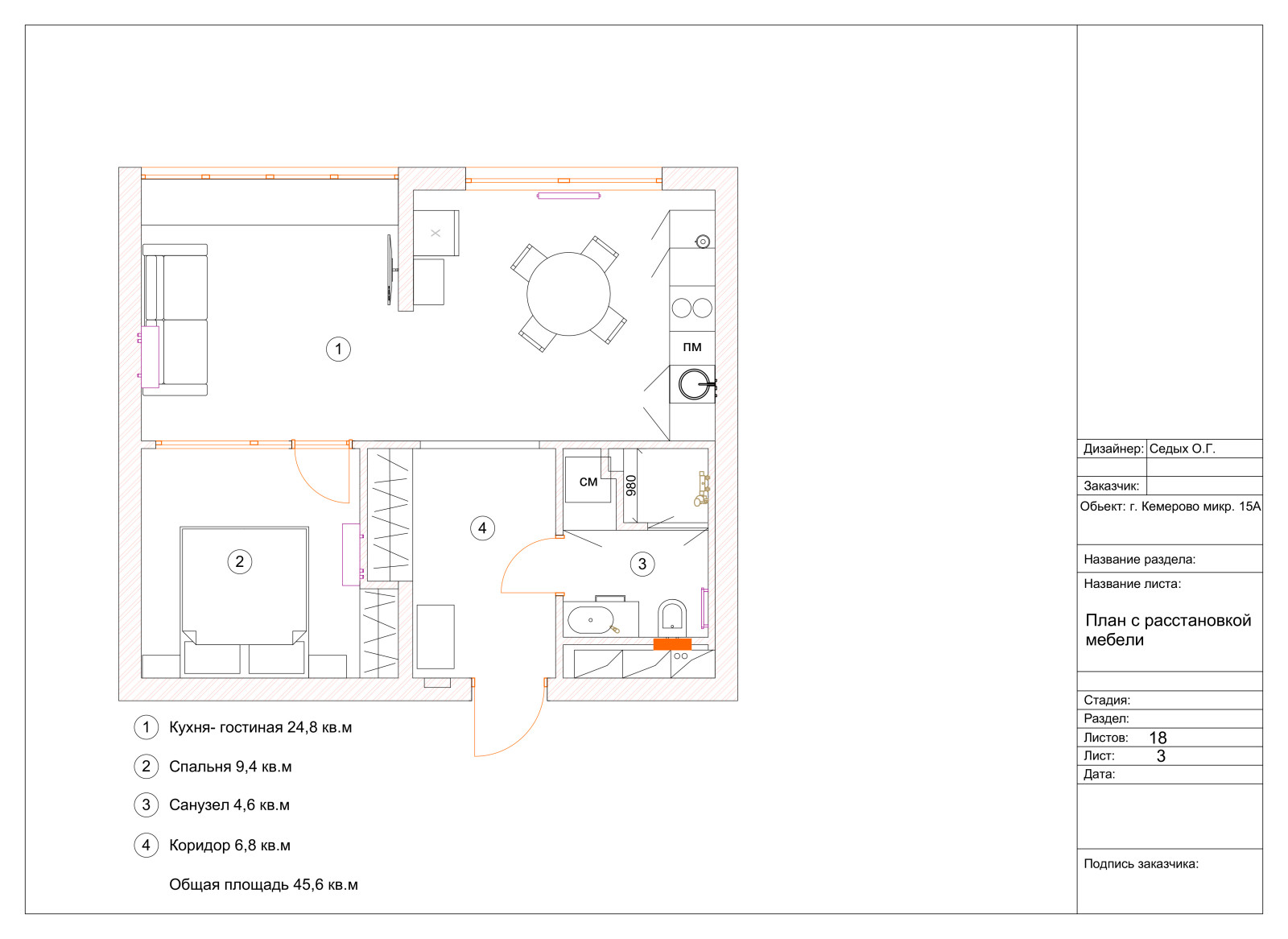
Гостевая квартира для периодического проживания. Необходимо было спроектировать совмещенную кухню- гостиную, спальню и санузел. В выборе стилистики я была свободна и предложила современный интерьер с элементами ретро
Год реализации: 2020
Стоимость проектирования: 2 450 000 ₽
г. Кемерово
21 фотография






















