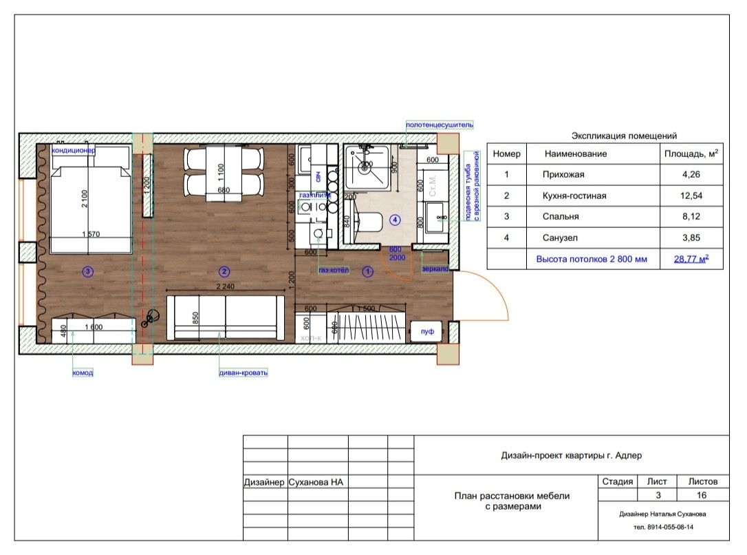
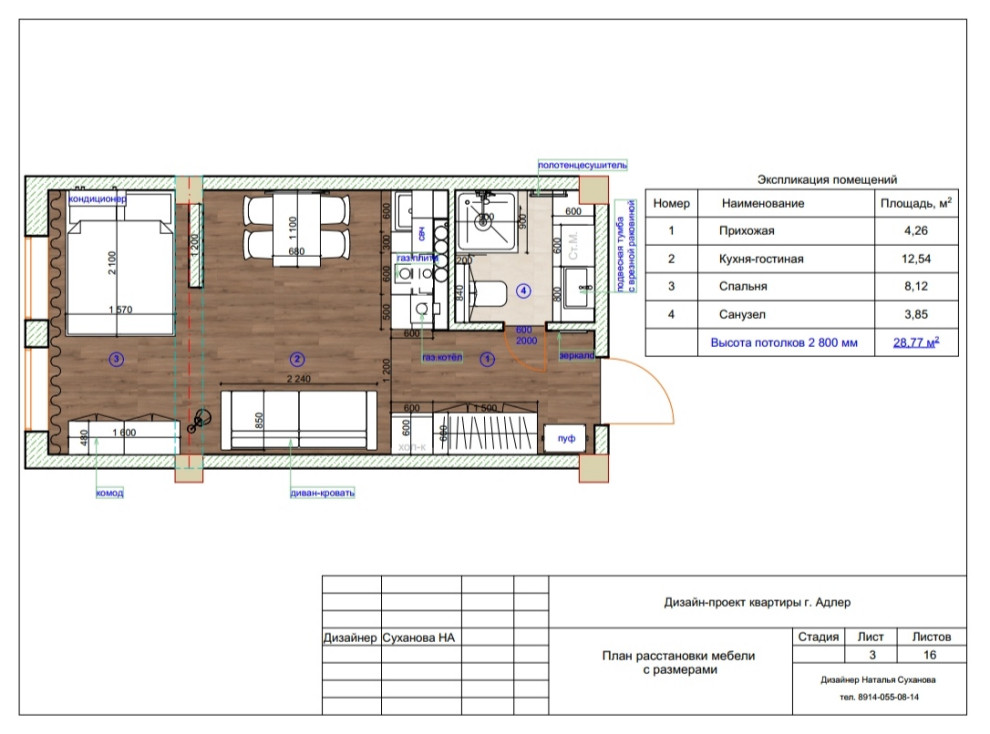
Реализация проекта квартиры-студии 27м2 для сдачи в аренду в г. Сочи.
Бюджет на весь ремонт составил 600 тысяч .
Год реализации: 2021
Стоимость проектирования: 525 000 ₽
29 фотографий
Бюджет на весь ремонт составил 600 тысяч .
29 фотографий

Реализация проекта квартиры г. Улан-Удэ
Реализация проекта квартиры площадью 80 м2
Проект квартиры в 110 квартале
Проект 4-комнатной квартиры 100 м2 в ЖК "ГринПарк"
Реализация проекта 2-комнатной квартиры 56 м2 в ЖК "Первый"
Реализация проекта квартиры 32 м2 в 110 квартале
Реализация проекта 2-комнатной квартиры 63 м2 в ЖК "БайкалСити"