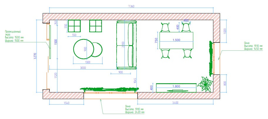
Расстановка мебели в летней кухне
Услуга расстановки мебели подходит тем, кому не нужен полный дизайн-проект, а лишь идея того, как красиво и функционально расставить мебель в помещении, грамотно использовав каждый сантиметр. К данному проекту я приложила также упрощенные визуализации представленных вариантов.
Год реализации: 2021
Стоимость проектирования: 34 999 ₽
9 фотографий










