"Проток" - Банно-термальный комплекс ощущений
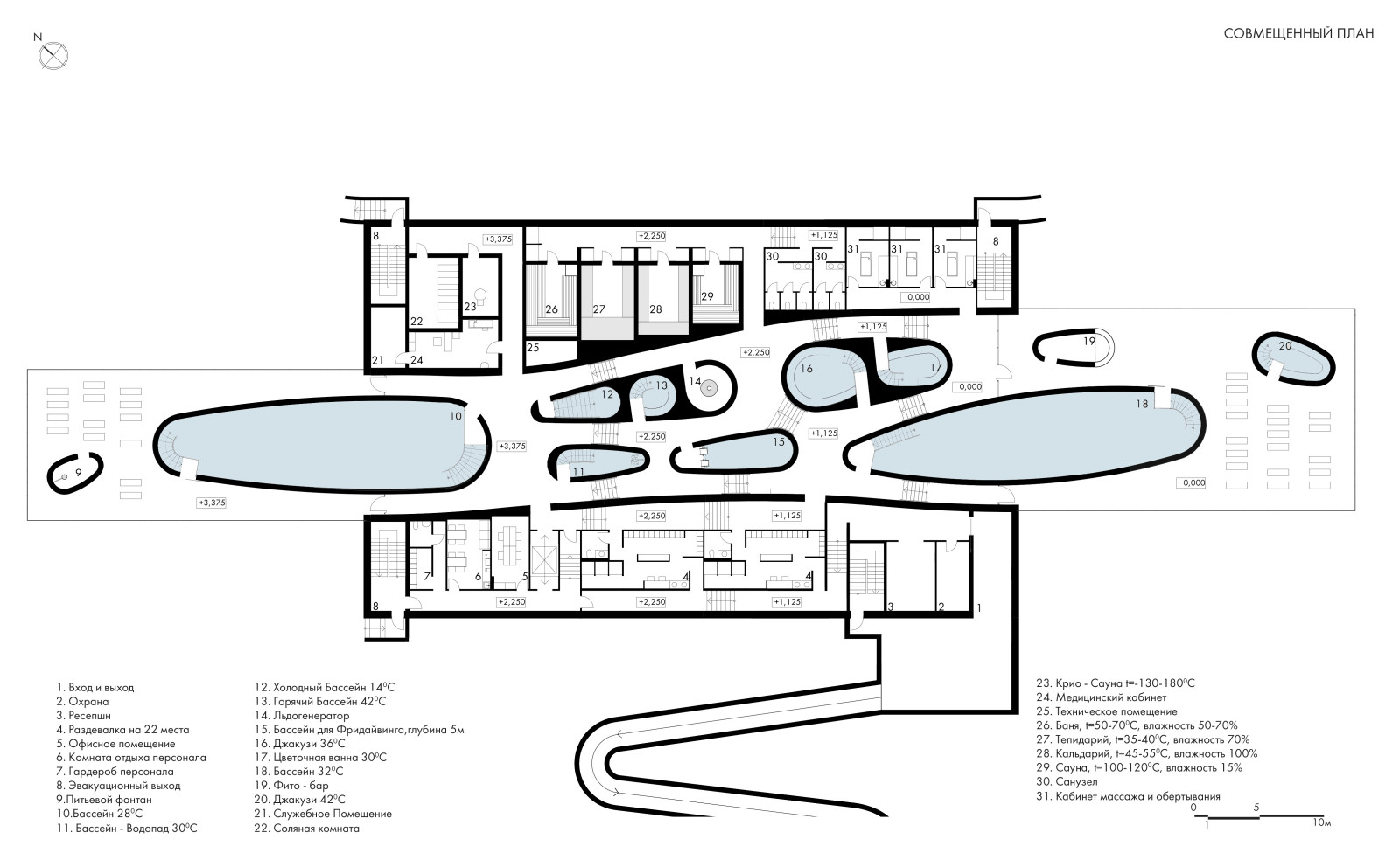
Концептуальный проект банно-термального комплекса в Исландии. Комплекс расположен в живописном месте среди ледников, безжизненных отложений базальтовой лавы, водопадов и быстротечных рек. . . Традиционные дома жителей Исландии заглублены в землю и покрыты дерном, так как, зачастую температура земли больше наружной температуры воздуха. Банно-термальный комплекс ощущений встроен в рельеф, видны только выступающие террасы и спиралевидный путь. . . В данном пространстве человек переживает всю гамму ощущений: экстероцептивные, проприоцептивные, интероцептивные. Передвигаясь по «протоку», гость ощущает себя как в реке, где он не движется, а протекает, как вода между камнями. В бассейнах у посетителя возникает сенсибилизация всех ощущений, и далее, пройдя в зону отдыха, происходит выход на сверхчувственность. . . «Проток» - это 11 бассейнов, с разной температурой, глубиной и вызываемыми чувствами, а также фито-бар. . В банно-термальном комплексе спроектированы кабинеты массажа и обертывания, для ощущений интероцептивных и обоняния. От посещения разных парных, гости получают комбинированные ощущения. Также спроектирована крио-сауна- ощущение холода, соляная комната - обоняние и медицинский кабинет. . . «Проток» завершается террасами с зоной отдыха и медитации. Объемы бассейнов сужаются к верху и завершаются световыми фонарями. . . В проекте используются 4 основных материала - это водонепроницаемый бетон со следами опалубки, используется для создания наклоненных и криволинейных стен; базальт, местный материал, используется для облицовки полов и стен бассейнов, надежной защиты стен; металл- бронза для деталей и стекло. Несущий остов здания состоит из монолитных железобетонных конструкций.
10 фотографий











